联系人:武经理
手机:13933744225
电话: 0319-4786765
传真: 0319-4845306
邮箱: 776150030@qq.com
网址:passionvietnam.com
永盈彩票地址:河北省邢台市新河县城北工业区
辽宁0.8*0.8米单向铸铁闸门的价格从700多元到1900多元的都有,详细准确的报价欢迎致电我们,本厂免费提供报价详情,支持货到结款,安心选购,规格型号齐全,同时支持定制生产!

一、辽宁0.8*0.8米单向铸铁闸门型号种类
永盈彩票1、PGZ0.8*0.8米平面拱形单向止水铸铁闸门,此种闸门的迎水面有个特点是拱形设计,就像拱形的桥面一样,可以更好的承受水压;
永盈彩票2、PZ0.8*0.8米平板单向铸铁闸门,此种闸门的挡水板是平板状,就像门板一样,背面有“十”字加强筋,承压能同样非常不错;
永盈彩票3、0.8*0.8米机闸一体单向止水铸铁闸门,此种闸门无需另外选配启闭机设备,闸门和启闭机为一体设计,安装简便,常常于农田灌溉或水产养殖的河道或渠道上。

二、辽宁0.8*0.8米单向铸铁闸门性能技术参数
1、板重:126千克
2、总重:244千克
3、适用水头:3米
永盈彩票4、地脚螺栓:4-M14×200mm
5、止水方式:单向止水,止水面可采用镶铜止水
6、可配型启闭机:手动螺杆启闭机、手电两用螺杆启闭机、电动螺杆启闭机等。

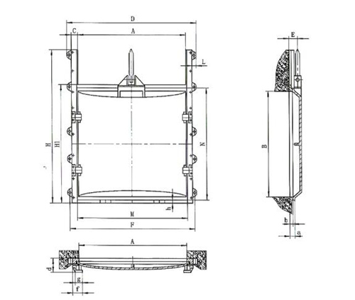
三、0.8*0.8米单向铸铁闸门安装结构图及安装尺寸参数
1、安装结构图
PGZ型0.8*0.8米单向平面拱形铸铁闸门安装结构图


2、安装尺寸参数
A:800mm
B:800mm
C:50mm
D:980mm
E:95mm
F:940mm
L:40mm
H:1200mm
H1:900mm
M:810mm
N:850mm
a:48mm
b:30mm
d:76mm
f:80mm
g:35mm
h:20mm

四、辽宁0.8*0.8米单向铸铁闸门优势特点
1、采用无死角金属止水,可采用铜止水,无需安装止水条,止水效果良好;
2、、门体和门框的主要材质为铸铁,因此其减震性、耐腐蚀性、抗氧化性、抗磨性性能优良,且使用寿命长!
永盈彩票3、启闭机平稳,运行稳定,挡板通过滑道和斜铁二重约束不会产生位移;
4、由于采用铸铁材质,因而具有较强的防腐蚀能力,可用于污水处理等水利工程;
5、采用硬止水,也可依据用户需求采用镶铜止水,因此止水效果良好,正常渗水量L≤1.25m·s。
永盈彩票6、闸门的结构合理,方便安装、操作简单;
7、尺寸型号多,可依据用户需求定制加工生产,可制造高水头闸门等。

五、辽宁0.8*0.8米单向铸铁闸门选购指南
1、PGZ系列仅用于安装在露顶式和闸后止水水工工程中,比如渠道,水库,水电站,河道上使用。
2、注明铸铁闸门材质、形式,是灰铸铁还是球墨铸铁;
3、标明过水口宽度B及高度h;
4、设计水头门叶面板的厚度,是否需要加强;
5、注明止水方式,是前止水,还是闸后止水,其中前止水使用于渠道、河道安装,通常为三边止水,后止水通常安装在涵洞,通常为四边止水;
永盈彩票6、止水面材质要求,是不锈钢止水还是镶铜止水;
永盈彩票7、其它特殊要求可双方协商解决,也可来图来样定制生产。
总结:
以上就是关于辽宁0.8*0.8米单向铸铁闸门价格、型号种类、性能技术参数、安装结构图及安装尺寸参数、优势特点和选购指南的内容了,辽宁0.8*0.8米单向铸铁闸门,安心选购,认准16年品牌企业瑞鑫水工,可定制,支持货到结款!