联系人:武经理
永盈彩票手机:13933744225
永盈彩票电话: 0319-4786765
传真: 0319-4845306
邮箱: 776150030@qq.com
网址:passionvietnam.com
地址:河北省邢台市新河县城北工业区

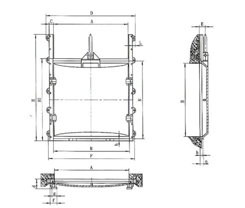
一、小型平面0.2m*0.2m-1m*1mPGZ铸铁滑动闸门常见型号及外形基础尺寸参数:
规格型号(m) | 0.2×0.2 | 0.3×0.3 | 0.4×0.4 | 0.5×0.5 | 0.6×0.6 | 0.8×0.8 | 1×1 | |
尺寸参数(mm) | A | 200 | 300 | 400 | 500 | 600 | 800 | 1000 |
B | 200 | 300 | 400 | 500 | 600 | 800 | 1000 | |
C | 30 | 30 | 30 | 40 | 40 | 50 | 50 | |
D | 320 | 420 | 520 | 640 | 740 | 980 | 1180 | |
E | 30 | 30 | 35 | 40 | 90 | 95 | 100 | |
F | 290 | 390 | 490 | 610 | 710 | 940 | 1140 | |
L | 30 | 30 | 30 | 30 | 30 | 40 | 40 | |
H | 400 | 500 | 600 | 700 | 800 | 1200 | 1440 | |
H1 | 260 | 360 | 460 | 580 | 680 | 900 | 1100 | |
M | 205 | 305 | 405 | 508 | 608 | 810 | 1010 | |
N | 230 | 330 | 430 | 540 | 640 | 850 | 1050 | |
a | 34 | 34 | 40 | 42 | 45 | 48 | 55 | |
b | 24 | 24 | 28 | 30 | 30 | 30 | 35 | |
d | 64 | 64 | 85 | 77 | 76 | 76 | 85 | |
f | 75 | 75 | 75 | 75 | 75 | 80 | 85 | |
g | 30 | 30 | 30 | 30 | 30 | 35 | 40 | |
h | 15 | 15 | 15 | 20 | 20 | 20 | 25 | |
重量(kg) | 板重 | 11 | 16 | 26 | 45 | 102 | 126 | 185 |
总重 | 23 | 31 | 50 | 95 | 182 | 244 | 311 | |
二、本产品的主要应用场景、安装位置及主要作用:
1、主要应用工程项目:农田灌溉、给排水、取水输水、给水排水、水电站等工程中。
2、常见安装位置:渠道、涵管的进水口等,因此也被称为渠道闸门。
3、主要作用:起调节流量、控制水位的工作闸门,或起关闭孔口挡水,作为检修闸门使用,也可称为检修闸。
三、本产品的特点优势:
1、采用无死角金属止水(可采用铜止水),无需安装止水条,止水效果良好;
2、启闭机平稳,运行稳定,挡板通过滑道和斜铁二重约束不会产生位移;
3、结构简单、安装简便,省时省力。
4、门体和门框的主要材质为铸铁,因此其减震性、耐腐蚀性、抗氧化性、抗磨性性能优良,且使用寿命长!