联系人:武经理
手机:13933744225
电话: 0319-4786765
传真: 0319-4845306
永盈彩票邮箱: 776150030@qq.com
网址:passionvietnam.com
地址:河北省邢台市新河县城北工业区
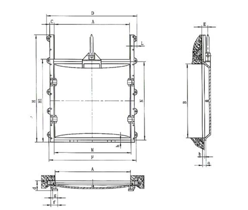
小型农田铸铁闸门通常是指尺寸比较小的闸门,多数采用铸铁材质,尺寸型号通常200mm*200mm到1米*1米之间,厂家价格通常在600元一套到1600元一套之间,外形多为方形、矩形或圆形,致电厂家免费提供报价性情,还支持货到结款哦!

一、小型农田铸铁闸门的优势特点:
1、外形尺寸小,安装简单方便;
2、小型农田铸铁闸门的闸板和闸框通常为整体铸造,安装时整体安装即可;
3、小型农田铸铁闸门配型的启闭机类型多种多样,常见的有手动螺杆启闭机、手电螺杆启闭机等,操作方便,即使在无电的山区也可以人力操作,应用广泛;
永盈彩票4、本厂生产的小型农田铸铁闸门启闭机可配置防盗水部件,使用更加放心;
5、使用寿命长,无需更换止水,因为采用的精细机加工止水面,通过水压和契紧装置来实现良好的密封,即使使用时间久了,也可以通过调节压紧装置实现良好的密封;
6、本厂专注水利闸门生产将近20年,售后无忧!

二、小型农田铸铁闸门的类型结构
1、小型农田铸铁闸门的外形结构常见的有PGZ型永盈彩票、PZ型、圆形、机闸一体型四种;

2、PGZ型迎水面为拱形,采用后止水,闸门重量轻,操作方便;
3、PZ型挡水闸门永盈彩票的挡水板在同一个平面上,背面有“十”字加强筋,可以适应更大的水压;

永盈彩票4、圆形多为SYZ型,满足用户圆形的孔口;
5、机闸一体型铸铁闸门永盈彩票是闸门和启闭机为一体的,安装操作方便,无需启闭机平台;

三、小型农田铸铁闸门安装要点
永盈彩票1、小型农田铸铁闸门通常尺寸比较小,因此在安装的时候采用整体安装,不可把闸框和闸板分开安装,可能会导致变形,而导致漏水;
2、在小型农田铸铁闸门安装就位后,固定之前,需要经过线锤和经纬仪测量闸门的垂直度和倾斜度是否达标,防止小型农田铸铁闸门安装完成后垂直度不达标而导致闸门启闭不顺、出现卡顿而返工,同时应用塞尺检查密封面间隙是否在0.1毫米以内,如果间隙过大,可垫入斜铁并调节相应的锲块到间隙小于0.1毫米为止,防止安装完成后渠道闸门渗水量不达标或漏;
3、小型农田铸铁闸门调平、找正后,将水利闸门闸框配套的连接钢板与预埋钢板焊接牢固,为有效控制钢板焊接变形,连接钢板和预埋钢板要先点焊再连续焊接加固,且要保证预埋钢板与结构钢筋表面处于同一水平线上,可使铸铁闸门的密封效果和垂直度达到安装标准;

4、小型农田铸铁闸门启闭机安装前,应在启闭机底板上和平台上画出对应的十字线,然后将启闭机的中线与平台上的十字线相对应,水平仪对启闭机底板进行调平,然后将丝杆的下端与渠道双止水闸门吊耳移到对应的位置,并检查丝杆的垂直度,使其误差小于1/500mm,利用销轴连接闸杆吊耳和闸门吊耳,并将启闭机钢板与预埋钢板焊接固定;
永盈彩票5、轴导架安装,将轴导架安装到设定的位置上,与预套在丝杆上的套管用螺栓紧固,保证轴导架管与丝杆处在同心位置,特别是下部分的轴导架,与闸门耳的距离大于闸门口径,其余轴导架在闸门在启闭过程中不能碰到丝杆连接套。
6、小型铸铁闸门启闭机防护罩的安装,安装启闭机护罩,并用螺栓紧固在启闭机顶部。
永盈彩票7、如果为机闸一体型农田闸门的话,启闭机久不用单独安装了。
四、小型农田铸铁闸门厂家介绍

总结:
以上就是关于小型农田铸铁闸门的内容了,致电厂家9折优惠,厂家常年有大量现货,支持货到结款,当然如果想采购钢制的也可以哦!