联系人:武经理
手机:13933744225
永盈彩票电话: 0319-4786765
传真: 0319-4845306
永盈彩票邮箱: 776150030@qq.com
网址:passionvietnam.com
永盈彩票地址:河北省邢台市新河县城北工业区
永盈彩票单吊平面拱形铸铁闸门是指迎水面是拱形的,只有一个吊点的,宽度通常在2.5米以下的PGZ型铸铁平面闸门,因为在2.5米以上的多数情况下会采用双吊点,厂家报价从480元每套到1万左右每套的都有,此种闸门多为单向止水,多应用于小型的水利工程,比如渠道、农田灌溉、水产养殖等。
一、单吊平面拱形铸铁闸门简介
单吊平面拱形铸铁闸门是一种采用后止水的小型铸铁闸门,可承受的水压比较小,多用于低水头的,只限于安装在露顶式水利工程上使用,采用拱形设计,也可以说是弧形设计,也被称为PZHM型闸铸铁闸门,闸板厚度比较薄,性价比比较高,配型启闭机多为螺杆式,比如手动螺杆启闭机(QLT型、QLSY型、QLC型等)、手电两用启闭机(QL型、QLZ型等)。

二、结构组件及工作原理
1、结构组件:
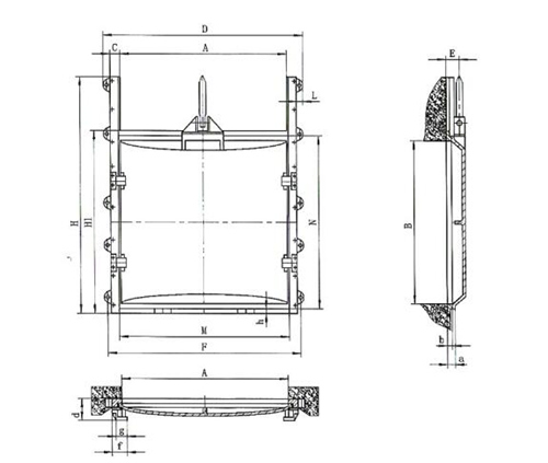
永盈彩票单吊平面拱形铸铁闸门属于平面铸铁滑动闸门的一种,其结构与平面铸铁滑动闸门一样,通常由闸框、闸板、导轨、吊耳/吊块螺母、压紧锲块等组件构成,因为闸门尺寸比较小,通常采用整体铸造的方式来生产加工,闸板、闸框、导轨,吊耳材质通常采用性价比高的灰口铸铁HT250,密封座为灰口铸铁HT200或铜合金2CuSn5Pb5Zn,楔块为灰口铸铁HT200或铜合金2CuSn5Pb5Zn,这样闸门不但生产加工方便,还经济耐用,造价低。
2、工作原理:
单吊铸铁拱形/弧形闸板的工作原理很简单,就是通过螺杆启闭机螺杆的上下移动,来带到拱形闸门在闸框、导轨的预定轨道上滑动,来开启或关闭闸门,实现调节水流量的大小,其特点在于挡水板的迎水面为拱形,拱形结构增加了其抗水压的能力,止水采用钢或镶铜的形式,如止水采用镶铜,也被称为单吊点平面拱形铸铁镶铜闸门。
三、单吊平面拱形铸铁闸门安装尺寸参数
单吊平面拱形铸铁闸门200*200mm-1000*1000mm的外形尺寸、安装尺寸参数、适用水头、板重、总重等如下表,1米以上的型号参数详情可参考本站《PGZ平面滑动铸铁闸门厂家规格型号大全》
单吊平面拱形铸铁闸门200*200mm-1000*1000mm的外形尺寸

三、PGZ单吊点平面铸铁拱形闸门和PZ单吊点平板铸铁闸门的区别
两者的区别在于挡水板的外形不同,PGZ型是有弧度的,PZ型的挡水板是没有弧度,背水面有“十”字加强筋,同等重量的情况下,两者同属于平面铸铁闸门,止水面都可依据用户需求镶铜,也都可制作成双向止水型。
四、产品报价影响因素
因为在2.5米以下的闸门有很多不同的尺寸型号,选购的型号尺寸不同,闸门厚度重量不同,厂家报价也肯定有所不同,另外受原材料及人工成本的影响,价格是会有所浮动的,致电我们,免费提供厂家一手报价!
五、订购须知
1、过水口宽度
2、过水口高度
3、设计水头
4、订购数量
永盈彩票5、配什么型号规格的启闭机(闸门吊耳孔大小与启闭机螺杆孔大小有关)
五、厂家售后
1、支持货到结款,库存量大,通常可订货后立即发货;
2、可全程协助客户安装,同时视情况可排技术人员入驻施工现场指导安装;
3、如确因质量出现问题,支持无条件退换货。

本厂从事铸铁闸门、铸铁镶铜闸门、启闭机等水工机械研发、生产、销售一体的实力品牌企业。我厂拥有精良的生产设备、雄厚的技术力量、完善的检测手段、健全的质量保证体系、产品结构合理、性能可靠、品种齐全、各项技术指标均达到行业标准,同时拥有:中性螺杆启闭机许可证、小卷扬启闭机许可证等。

本厂主营产品: 铸铁平面滑动闸门(0.2x0.2m-5mx5m)该闸门止水效果好、耐腐蚀、安装维护简便,适用于工程中的单向、双向止水。启闭机有: QL型螺杆式启闭机(0.3-200t)该产品有手动平推式和侧摇式,有手电两用 式,还分为单吊点和双吊点。其中小型启闭机带有机锁装置,3t以上启闭机配有高度指 示器和上下行程限位装置,QPQ、QPK(快速闭门)型卷扬式启闭机(5-2x150t)该产品25t以下为手电两 用式,40t以上为电动式且带有过载保护装置,均配有上下限装置。另外我公司可根 据用户具体要求生产各种规格的高扬程卷扬机和移动式启闭机。