永盈彩票

永盈彩票是从事水工机械研发、生产、销售于一体厂家。
联系方式 more +

联系人:武经理

手机:13933744225

电话: 0319-4786765

永盈彩票传真: 0319-4845306

邮箱: 776150030@qq.com

网址:passionvietnam.com  

永盈彩票地址:河北省邢台市新河县城北工业区

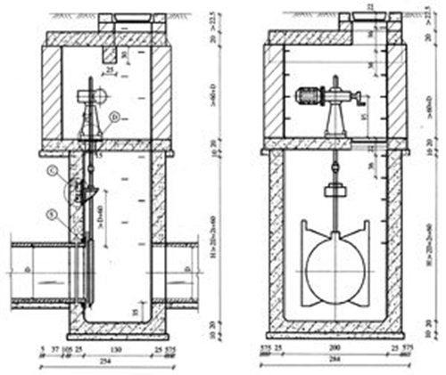
暗杆式铸铁镶铜闸门

AYZ型

发布日期:2025-09-17 18:23:34浏览:1227 次

AYZ型铸铁镶铜圆闸门


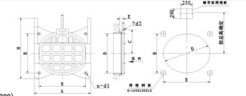
一、AYZ型暗杆式铸铁闸门规格型号及外形布置尺寸:

表:(一)AYZ型DN200-500mm尺寸参数

规格型号D(mm)

200

250

300

400

450

500

尺寸参数(mm)

A

360

410

460

560

610

660

B

200

250

300

400

450

500

C

145

175

200

275

300

340

E

70

75

80

95

95

95

H

360

450

540

720

810

900

∅d

18

18

20

20

25

25

n-d1

M8

M8

M12

M12

M12

M16


AYZ-200mm到AYZ-1200mm暗杆式铸铁镶铜圆闸门安装布置结构图


表:(二)AYZ型DN600-1200mm尺寸参数

规格型号D(mm)

600

700

800

900

1000

1200

尺寸参数(mm)

A

700

940

1030

1100

1260

1470

B

600

700

800

900

1000

1200

C

390

440

500

550

600

700

E

95

110

110

115

115

130

H

1080

1260

1440

1620

1800

2160

∅d

32

32

32

32

36

40

n-d1

M16

M16

M16

M20

M22

M24


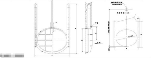
表:(三)AYZ型DN1400-1900mm尺寸参数

规格型号D(mm)

1400

1500

1600

1700

1800

1900

尺寸参数(mm)

A

1630

1750

1880

1980

2080

2180

E

180

190

190

200

210

210

C

800

850

900

950

1000

1050

G

110

110

120

120

130

130

H

2520

2700

2880

3060

3240

3420

∅d

40

40

44

44

44

50

a

160

160

160

160

180

180

b

2800

3000

3200

3400

3600

3800


AYZ-1400mm到AYZ-3000mm暗杆式铸铁镶铜圆闸门安装布置结构图 


表:(四)AYZ型DN2000-3000mm尺寸参数 

规格型号D(mm)

2000

2200

2400

2800

3000

尺寸参数(mm)

A

2280

2490

2690

3090

3300

E

230

250

250

280

310

C

1100

1200

1300

1500

1600

G

140

140

140

150

150

H

3600

3690

4320

5040

5400

∅d

50

55

55

55

60

a

180

180

180

200

200

b

4000

4400

4800

5600

6000

二、产品优势特点:

1、本产品具有安装方便的特点,因其通常情况下采用整体套装;

2、启闭速度快,因在安装中会稍高于水头,开启水头小;

3、操作方便、轻巧、可靠;

4、可采用电动控制装置,易实现自控和远控的;

5、采用硬密封止水,具有较好的密封性能,采用铜止水的较多,也常常称为暗杆式铸铁镶铜圆闸门;

6、介质流向不受限 , 不扰流、不降低压力;

7、流体阻力小 , 密封面受介质的忡刷和侵蚀小,使用寿命长;

8、耐酸碱性能好,可适用于污水、海水;

三、应用及用途:

可广泛应用于冶金、纺织、石油、化工、电力等污水处理水利上,是污水流量和液面水位的控制重要设备之一,且多用于在不允许安装明杆式闸门的场所。

微信扫码咨询

联系人:武经理

永盈彩票手机:13933744225

电话: 0319-4786765

永盈彩票传真: 0319-4845306

永盈彩票邮箱: 776150030@qq.com

永盈彩票网址:passionvietnam.com  

地址:河北省邢台市新河县城北工业区

天天中彩票-Welcome首页 乐盈VI 500505百万文字论坛综合资料-500308百万文字论坛-780790百万文字论坛红字-798790百万文字论坛下载-500505百万文字论坛雷锋版 佰富彩-安全购彩 98彩票|官方网站 800彩票 - 首页 乐发vll500 佰富彩-welcome