联系人:武经理
手机:13933744225
电话: 0319-4786765
永盈彩票传真: 0319-4845306
永盈彩票邮箱: 776150030@qq.com
永盈彩票网址:passionvietnam.com
地址:河北省邢台市新河县城北工业区

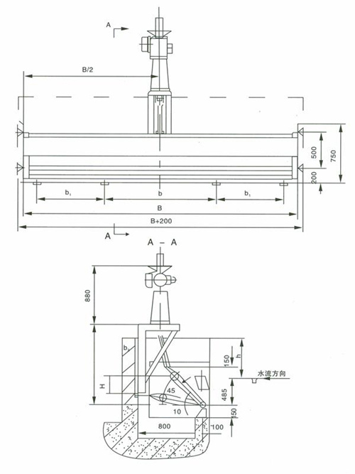
一、YXT型堰门的工作原理
YXT型堰门通过电动头带动堰口在半径接近于(0°~60°)的弧度范围内旋转,来达到调节水位目的。
二、适用安装位置
通常安装在沉淀池、曝气池等构筑物配水井处。
三、型号说明
Y:堰门;X:旋转式;B:堰门宽度;H:调节范围

四、常见YXT型旋转式调节堰门规格及安装尺寸
表(一):YXT2000-3500mm调节堰门的规格型号及形安装尺寸表,单位(mm)
规格型号 | YXT-2000 | YXT-2500 | YXT-3000 | YXT-3500 |
堰门宽度B | 2000 | 2500 | 3000 | 3500 |
调节范围H(mm) | 320 | 320 | 320 | 320 |
升降速度 (m/min) | 0.108 | 0.108 | 0.108 | 0.108 |
电机功率 (KW) | 0.37 | 0.37 | 0.37 | 0.37 |
b(mm | 540 | 700 | 880 | 1100 |
b1(mm) | 530 | 700 | 860 | 1000 |
h(mm) | 300~400 | 300~400 | 300~400 | 300~400 |
a×b1 | 800×350 | 800×350 | 800×350 | 800×350 |
n-a1×a1 | 12-200×200 | 12-200×200 | 12-200×200 | 12-200×200 |

表(二):YXT2000-3500mm调节堰门的规格型号及形安装尺寸,单位(mm)
规格型号 | YXT-4000 | YXT-4500 | YXT-5000 |
堰门宽度B | 4000 | 4500 | 5000 |
调节范围H(mm) | 320 | 320 | 320 |
升降速度 (m/min) | 0.108 | 0.108 | 0.108 |
电机功率 (KW) | 0.55 | 0.55 | 0.55 |
b(mm | 1200 | 1380 | 1540 |
b1(mm) | 1200 | 1360 | 1530 |
h(mm) | 300~400 | 300~400 | 300~400 |
a×b1 | 800×350 | 800×350 | 800×350 |
n-a1×a1 | 12-200×200 | 12-200×200 | 12-200×200 |