永盈彩票

永盈彩票是从事水工机械研发、生产、销售于一体厂家。
联系方式 more +

联系人:武经理

永盈彩票手机:13933744225

永盈彩票电话: 0319-4786765

永盈彩票传真: 0319-4845306

邮箱: 776150030@qq.com

网址:passionvietnam.com  

永盈彩票地址:河北省邢台市新河县城北工业区

成功案例

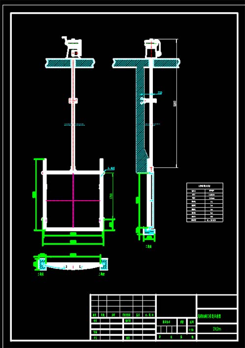
黑龙江铸铁闸门启闭机厂家支持来图来样定制生产

发布日期:2022-08-09 21:27:41浏览:287 次

黑龙江铸铁闸门启闭机厂家支持来图来样定制生产,从下面的微信聊天截屏中可以看出本厂还支持付定金,获得结款的形式,让用户放心选购,同时本厂可免费提供技术指导安装!


黑龙江铸铁闸门启闭机厂家支持来图来样定制生产

铸铁闸门启闭机样图

闸门启闭机厂家支持依图定制生产

黑龙江定制铸铁闸门启闭机案例




热点资讯

微信扫码咨询

联系人:武经理

手机:13933744225

电话: 0319-4786765

传真: 0319-4845306

邮箱: 776150030@qq.com

永盈彩票网址:passionvietnam.com  

地址:河北省邢台市新河县城北工业区

天天中彩票-Welcome首页 乐盈VI 500505百万文字论坛综合资料-500308百万文字论坛-780790百万文字论坛红字-798790百万文字论坛下载-500505百万文字论坛雷锋版 佰富彩-安全购彩 98彩票|官方网站 800彩票 - 首页 乐发vll500 佰富彩-welcome