联系人:武经理
永盈彩票手机:13933744225
电话: 0319-4786765
永盈彩票传真: 0319-4845306
永盈彩票邮箱: 776150030@qq.com
网址:passionvietnam.com
地址:河北省邢台市新河县城北工业区
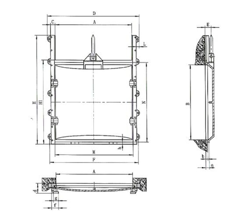
SFZ型铸铁方闸门是指闸板的形状是正方形的铸铁闸门,当然其中包括有PGZ方形的、PZ方形、单向止水方形的、双向止水方形的等,也可以采用镶铜止水,又称为SFZ铸铁镶铜方闸门,下面从其型号、常见的外形尺寸及安装布置尺寸、材质及主要技术参数等内容分别说明。
一、SFZ方形铸铁闸门型号、外形、布置尺寸表:
表(一):SFZ型0.2×0.2-1×1m
规格型号(m) | 0.2×0.2 | 0.3×0.3 | 0.4×0.4 | 0.5×0.5 | 0.6×0.6 | 0.8×0.8 | 1×1 | |
尺寸参数(mm) | A | 200 | 300 | 400 | 500 | 600 | 800 | 1000 |
B | 200 | 300 | 400 | 500 | 600 | 800 | 1000 | |
C | 30 | 30 | 30 | 40 | 40 | 50 | 50 | |
D | 320 | 420 | 520 | 640 | 740 | 980 | 1180 | |
E | 30 | 30 | 35 | 40 | 90 | 95 | 100 | |
F | 290 | 390 | 490 | 610 | 710 | 940 | 1140 | |
L | 30 | 30 | 30 | 30 | 30 | 40 | 40 | |
H | 400 | 500 | 600 | 700 | 800 | 1200 | 1440 | |
H1 | 260 | 360 | 460 | 580 | 680 | 900 | 1100 | |
M | 205 | 305 | 405 | 508 | 608 | 810 | 1010 | |
N | 230 | 330 | 430 | 540 | 640 | 850 | 1050 | |
a | 34 | 34 | 40 | 42 | 45 | 48 | 55 | |
b | 24 | 24 | 28 | 30 | 30 | 30 | 35 | |
d | 64 | 64 | 85 | 77 | 76 | 76 | 85 | |
f | 75 | 75 | 75 | 75 | 75 | 80 | 85 | |
g | 30 | 30 | 30 | 30 | 30 | 35 | 40 | |
h | 15 | 15 | 15 | 20 | 20 | 20 | 25 | |
重量(kg) | 板重 | 11 | 16 | 26 | 45 | 102 | 126 | 185 |
总重 | 23 | 31 | 50 | 95 | 182 | 244 | 311 |
表(二):SFZ型1.2×1.2-2.5×2.5m
规格型号(m) | 1.2×1.2 | 1.5×1.5 | 2×2 | 2.5×2.5 | |
尺寸参数(mm) | A | 1200 | 1500 | 2000 | 2500 |
B | 1200 | 1500 | 2000 | 2500 | |
C | 60 | 60 | 70 | 80 | |
D | 1320 | 1620 | 2140 | 2660 | |
E | 105 | 150 | 182 | 167 | |
F | 1110 | 1590 | 2110 | 2620 | |
H | 1110 | 1960 | 2460 | 2960 | |
H1 | 1320 | 1620 | 2140 | 2660 | |
M | 1255 | 1545 | 2060 | 2580 | |
N | 1260 | 1560 | 2070 | 2580 | |
a | 170 | 190 | 235 | 285 | |
b | 55 | 60 | 70 | 80 | |
d | 160 | 180 | 190 | 195 | |
e | 100 | 100 | 105 | 115 | |
f | 110 | 130 | 140 | 160 | |
g | 30 | 50 | 50 | 50 | |
h | 30 | 30 | 35 | 45 | |
h1 | 100 | 150 | 280 | 280 | |
h2 | 570 | 450 | 530 | 370 | |
h3 | 490 | 450 | 500 | 450 | |
h4 | 400 | 400 | 500 | 650 | |
h5 | 430 | 500 | 750 | ||
h6 | 80 | 400 | |||
适用水头 | 3 | 6 | 6 | 6 | |
重量kg | 板重 | 275 | 600 | 1200 | 2090 |
总重 | 500 | 900 | 1820 | 2900 | |
地脚螺栓 | 8-M14×200 | 10-M16×300 | 10-M16×300 | 12-M16×300 |
表:(三)SFZ型3×3-5×5m
规格型号(m) | 3×3 | 3.5×3.5 | 4×4 | 5×5 | |
尺寸参数(mm) | A | 3000 | 3500 | 4000 | 5000 |
B | 3000 | 3500 | 4000 | 5000 | |
C | 90 | 100 | 110 | 120 | |
D | 3180 | 3700 | 4220 | 5240 | |
E | 190 | 290 | 340 | 350 | |
F | 3140 | 3650 | 4170 | 5180 | |
H | 3480 | 4000 | 4520 | 5540 | |
H1 | 3180 | 3700 | 4220 | 5240 | |
M | 3080 | 3590 | 4100 | 5120 | |
N | 3080 | 3600 | 4110 | 5120 | |
a | 340 | 390 | 440 | 530 | |
b | 90 | 100 | 110 | 120 | |
d | 225 | 235 | 250 | 260 | |
e | 130 | 140 | 150 | 160 | |
f | 180 | 200 | |||
g | 60 | 65 | 70 | 70 | |
h | 60 | 60 | 65 | 70 | |
h1 | 280 | 280 | 280 | 280 | |
h2 | 370 | 460 | 700 | 900 | |
h3 | 550 | 600 | 900 | 1000 | |
h4 | 700 | 800 | 800 | 1000 | |
h5 | 800 | 800 | 900 | 1200 | |
h6 | 680 | 900 | 900 | 1200 | |
适用水头 | 6 | 6 | 6 | 6 | 6 |
重量kg | 板重 | 6880 | 7700 | 11469 | 16925 |
总重 | 8580 | 9525 | 13229 | 19685 | |
地脚螺栓 | 12-M16×300 | 12-M18×350 | 12-M20×400 | 12-M20×400 |
二、SFZ型铸铁方闸门及配套启闭机的主要技术参数表:
规格型号(m) | SFZ1.4×1.4 | SFZ1.4× 1.4 | SFZ1.2× 1.2 |
数量 | 4 | 8 | 2 |
启闭形式 | 手电两用 | ||
承压方向 | 正向 | 正向 | 正向 |
安装形式 | 墙式安装 | ||
配套启闭机型号 | 35AB4/IB8 | 35AB4/IB8 | 20AB4/IB6 |
启闭 力 (t) | 10 | 6 | 6 |
电机功率 | 2.04kw | 2.04kw | 0.76kw |
防护/绝缘等级 | IP68/F | IP68/F | IP68/F |
孔口**至平台距离 | 11.40 m | 6.7 m | 3.8 m |
正向水压 | 9.8m | 5m | 2.0m |
三、铸铁方闸门主要部件材质及执行标准
零件名称 | 材质 | 材质标准 |
闸板 | 灰铸铁(HT250)/球铁(QT450-10)、不锈钢 | GB9439-88/GB1348-88或GB12226-89/GB12227-89 GB1220-84 |
门框 | 灰铸铁(HT250)/球铁(QT450-10)、不锈钢 | |
导轨 | 灰口铸铁(HT250)/球铁(QT450-10)、不锈钢 | |
密封面 | 锡青铜ZCuSn5PbZn5或丁腈橡胶 |
GB1176-87或GB12225-89
|
楔块 | 锡青铜ZCuSn5PbZn5或丁腈橡胶ZCuAl10Fe3 | |
传动螺杆 | 不锈钢 |
GB1220-84
|
吊块螺母 | 吕铁青铜 |
GB1176-87
|
紧固件 |
不锈钢OCr17Ni12Mo2或OCr18Ni9Ti
|
GB1220-84
|
四、铸铁方闸门主要性能参数
1、型号与规格,方形闸门MZF200×200-5000×5000,详细尺寸及安装参数可参考上表中的数据
2、主要性能指标
a)闸门密封面配合间隙≤0.1mm,密封座厚度大于10mm;
b)密封面每米长度渗水量:正向≤0.7L/min·m,反向≤1.25L/min·m;
c)公称压力≤0.1Mpa;密封试验压力0.1Mpa;
d)工作环境:温度,-20℃~120℃,湿度,95;
e)工作介质:水与污水,PH值—5~10;
f)安装位置:正常状态下正向迎水、处于铅垂状态;
g)大工作水头:单向受压,正向10m反向5m,双向受压,均为10m;
h)启闭速度:不小于0.2m/min,不大于1.5m/min;
i)闸框距边壁距离距≥300mm,池底距离≥150mm-250mm;