联系人:武经理
手机:13933744225
永盈彩票电话: 0319-4786765
传真: 0319-4845306
永盈彩票邮箱: 776150030@qq.com
永盈彩票网址:passionvietnam.com
地址:河北省邢台市新河县城北工业区

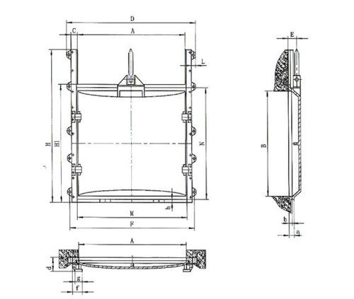
永盈彩票MZJ矩形铸铁闸门,从闸板是否有弧度上来说,还可分为PGZ矩形铸铁闸门和PZ铸铁闸门,其尺寸型号、布安装置尺寸、相关技术参数如下:
表:(一)MZJ0.8×1-1×1.5m
规格型号(m) | 0.8×1 | 1×1.2 | 1×1.5 | ||
尺寸参数(mm) | A | 800 | 1000 | 1000 | |
B | 1000 | 1200 | 1500 | ||
C | 55 | 55 | 55 | ||
D | 910 | 1110 | 1110 | ||
E | 85 | 85 | 95 | ||
F | 880 | 1080 | 1600 | ||
H | 1440 | 1080 | 1960 | ||
H1 | 910 | 1290 | 1600 | ||
M | 845 | 1045 | 1045 | ||
N | 1050 | 1250 | 1550 | ||
a | 130 | 150 | 150 | ||
b | 50 | 50 | 50 | ||
d | 135 | 140 | 190 | ||
e | 80 | 85 | 90 | ||
f | 90 | 90 | 90 | ||
g | 30 | 30 | 30 | ||
h | 30 | 30 | 30 | ||
h1 | 100 | 100 | 150 | ||
h2 | 600 | 570 | 450 | ||
h3 | 650 | 490 | 450 | ||
h4 | 400 | 400 | |||
h5 | 430 | ||||
N1 | 70 | 70 | 80 | ||
适用水头 | 3 | 3 | 3 | ||
重量kg | 板重 | 171 | 250 | 360 | |
总重 | 311 | 453 | 468 | ||
地脚螺栓 尺寸参数(mm) | 6-M14×200 | 8-M14×200 | 10-M14×200 | ||

表:(二)MZJ1.5×2-1×2.5×3m
规格型号(m) | 1.5×2 | 2×2.5 | 2×3 | 2.5×2 | 2.5×3 | |
尺寸参数(mm) | A | 1500 | 2000 | 2000 | 2500 | 2500 |
B | 2000 | 2500 | 3000 | 2000 | 3000 | |
C | 60 | 70 | 70 | 80 | 80 | |
D | 1620 | 2140 | 2140 | 2660 | 2660 | |
E | 160 | 212 | 167 | 167 | 167 | |
F | 1590 | 2110 | 2110 | 2620 | 2620 | |
H | 2460 | 2960 | 3640 | 2460 | 3460 | |
H1 | 2120 | 2640 | 3140 | 2160 | 3160 | |
M | 1545 | 2060 | 2060 | 2580 | 2580 | |
N | 2060 | 2570 | 3070 | 2080 | 3080 | |
a | 190 | 235 | 235 | 285 | 285 | |
b | 60 | 70 | 70 | 80 | 80 | |
d | 180 | 190 | 190 | 195 | 195 | |
e | 100 | 105 | 105 | 115 | 115 | |
f | 130 | 140 | 140 | 160 | 160 | |
g | 50 | 50 | 50 | 50 | 50 | |
h | 30 | 35 | 35 | 45 | 45 | |
h1 | 150 | 280 | 280 | 280 | 280 | |
h2 | 660 | 370 | 370 | 530 | 370 | |
h3 | 500 | 450 | 550 | 500 | 550 | |
h4 | 500 | 650 | 700 | 500 | 700 | |
h5 | 500 | 750 | 800 | 500 | 800 | |
h6 | 400 | 680 | 680 | |||
适用水头 | 6 | 6 | 6 | 6 | 6 | |
重量kg | 板重 | 720 | 1575 | 1750 | 1475 | 2390 |
总重 | 1120 | 2300 | 2850 | 2250 | 3350 | |
地脚螺栓
| 10-M16×300 | 12-M16×300 | 12-M16×300 | 10-M16×300 | 12-M16×300 | |

表(三):MZJ3×2-4×4.5m
规格型号(m) | 3×2 | 3.5×2 | 3.5×3 | 4×3 | 4×3.5 | 4×4.5 | ||
尺寸参数(mm) | A | 3000 | 3500 | 3500 | 4000 | 4000 | 4000 | |
B | 2000 | 2000 | 3000 | 3000 | 3500 | 4500 | ||
C | 90 | 100 | 100 | 110 | 110 | 110 | ||
D | 3180 | 3700 | 3700 | 4220 | 4220 | 4220 | ||
E | 190 | 290 | 290 | 340 | 340 | 340 | ||
F | 3140 | 3650 | 3650 | 4170 | 4170 | 4170 | ||
H | 2480 | 2500 | 3500 | 3520 | 4020 | 5020 | ||
H1 | 2180 | 2200 | 3200 | 3220 | 3720 | 4720 | ||
M | 3080 | 3590 | 3590 | 4100 | 4100 | 4100 | ||
N | 2080 | 2100 | 3100 | 3110 | 3610 | 4610 | ||
a | 340 | 390 | 390 | 440 | 440 | 440 | ||
b | 90 | 100 | 100 | 110 | 110 | 110 | ||
d | 225 | 235 | 235 | 250 | 250 | 250 | ||
e | 130 | 140 | 140 | 150 | 150 | 150 | ||
f | 180 | 200 | 200 | |||||
g | 60 | 65 | 65 | 70 | 70 | 70 | ||
h | 60 | 60 | 60 | 65 | 65 | 65 | ||
h1 | 280 | 280 | 280 | 280 | 280 | 280 | ||
h2 | 530 | 530 | 370 | 370 | 460 | 800 | ||
h3 | 500 | 500 | 550 | 550 | 600 | 900 | ||
h4 | 500 | 500 | 700 | 700 | 800 | 900 | ||
h5 | 500 | 500 | 800 | 800 | 800 | 1000 | ||
h6 | 680 | 700 | 920 | 1000 | ||||
适用水头 | 6 | 6 | 6 | 6 | 6 | 6 | ||
重量kg | 板重 | 2400 | 3170 | 4670 | 5500 | 6880 | 11469 | |
总重 | 3600 | 4309 | 6578 | 7598 | 8580 | 13229 | ||
地脚螺栓 | 10-M16×300 | 10-M18×350 | 12-M18×350 | 12-M20×400 | 12-M20×400 | 12-M20×400 | ||
永盈彩票闸门密封面配合间隙≤0.1 m,密封座厚度大于10 m;
永盈彩票密封面每米长度渗水量正向≤0.7L/min·m反向≤ 1.25L/min·m;
公称压力≤0.1Mpa ;密封试验压力0.1Mpa;
永盈彩票工作环境温度-20°C~ 120°C温度:百分之95工作介质水与污水 PH值:5~ 10;
永盈彩票安装位置:正常状态下正向迎水、处于铅垂状态;
工作水头:单向受压;正向: 10m反向: 5m双向受压均为10m;
永盈彩票启闭速度:不小于0.2m/min ,不大于1.5m/min;
闸框距边壁距离2≥300 m,距池底距离150 m~ 250m。
典型型号:MZJ0.8×1-1×1.5m
永盈彩票门框厚度55mm,板重171kg,总重311kg(含启闭装置)
地脚螺栓6-M14×200,3米水头下渗水量≤0.7L/min·m
永盈彩票适用场景:支渠分水口、社区雨水管网
结构特性:
技术突破:
永盈彩票采用梯度铸铁铸造工艺(HT250基体+铜合金密封面),抗泥沙冲刷能力提升40%。
代表型号:MZJ2×3m(表二)
性能亮点:
永盈彩票门框宽度2000mm,板重1750kg,6米水头双向承压
密封座厚度≥10mm,配合间隙≤0.08mm(优于国标0.1mm)
工程案例:某沿海工业园区排涝系统,服役8年零渗漏
旗舰型号:永盈彩票MZJ4×4.5m(表三)
参数解析:
永盈彩票总重13.2吨,地脚螺栓12-M20×400,抗风浪冲击等级达12级
启闭速度0.5m/min(电动),适配10米高水头双向压力
永盈彩票应用领域:三峡库区生态调水工程、南水北调泵站
四、选型决策矩阵
| 场景需求 | 建议型号 | 关键参数 | 成本效益 |
|---|---|---|---|
| 农田节水灌溉 | MZJ1×1.2m | 3米水头/总重453kg | ★★★★★ |
| 城市地下综合管廊 | MZJ2.5×3m | 双向10米水头/启闭机速度0.8m/min | ★★★★☆ |
| 沿海电厂冷却系统 | MJZ4×4.5m(镀镍板) | 盐雾试验2000小时无腐蚀 | ★★★☆☆ |
总结:
以上就是关于MZJ矩形铸铁镶铜闸门常见的型号、外形及安装布置尺寸及相应的主要性能技术参数的内容了,河北瑞鑫水工常年专注水工铸铁闸门、启闭机的生产安装,关注我们了解更多内容!