联系人:武经理
手机:13933744225
永盈彩票电话: 0319-4786765
传真: 0319-4845306
邮箱: 776150030@qq.com
永盈彩票网址:passionvietnam.com
地址:河北省邢台市新河县城北工业区
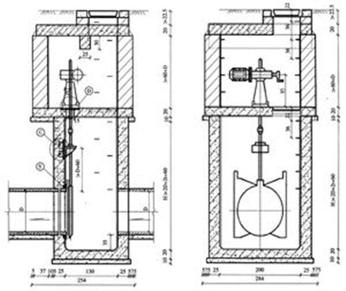
SSYZ正反向止水铸铁镶铜闸门也被称为正反向止水铸铁镶铜圆闸门、双向止水铸铁镶铜闸门,多用于污水处理,闸门止水槽内镶嵌有青铜条,具有耐磨性好,耐腐蚀性强,维护保养简单等优势特点。是在syz型铸铁镶铜圆闸门的基础上改进而来。其详细的结构图、及主要技术参数如下。

一、SSYZ型正反向止水铸铁闸门主要技术参数:
规格型号 | SSYZ1600 | SSYZ2000 | SSYZ1500 |
数量 | 2 | 1 | 3 |
启闭形式 | 手电两用 | ||
承压 | 双向 | ||
安竣 | |||
配套启闭机型号 | 25AB4/IB8 | 35AB4/IB10 | 20AB4/IB6 |
启闭力(t) | 8 | 18 | 6 |
电机功率 | 1.06kw | 2.04kw | 0.76kw |
防护/绝缘等级 | IP68/F | IP68/F | IP68/F |
孔口中线至平台距离 | 4.00 m | 15.9 m | 6.75 m |
正向水压 | 3.50m | 15m | 6.0m |
反向水压 | 2.6m | 15m | 6.0m |

二、SSYZ铸铁镶铜闸门尺寸参数
SSYZ铸铁镶铜闸门的常见外形尺寸参数可参考本站《syz铸铁镶铜闸门》,需要注意的是多数情况下是依据实际的工程项目需求来定制生产 加工。瑞鑫水工厂家专注行业近20年,来图来样支持定制胜寒加工。