永盈彩票

永盈彩票是从事水工机械研发、生产、销售于一体厂家。
联系方式 more +

联系人:武经理

永盈彩票手机:13933744225

电话: 0319-4786765

永盈彩票传真: 0319-4845306

永盈彩票邮箱: 776150030@qq.com

网址:passionvietnam.com  

地址:河北省邢台市新河县城北工业区

永盈彩票

海南dn300暗杆式铸铁圆闸门价格,老牌工厂终身质保

发布日期:2024-10-23 12:03:18浏览:260 次

海南dn300暗杆式铸铁圆闸门价格在800多元到2000元左右不等,认准老牌工厂,厂家直供,无中间商,终身质保,售后无忧,致电我们实时了解行情走势,选购优良水利闸门启闭产品!

海南dn300暗杆式铸铁圆闸门价格,老牌工厂终身质保

一、海南dn300暗杆式铸铁圆闸门简介

海南dn300暗杆式铸铁圆闸门的类型有很多,比如有AXY型、ZAQY型、AYZ型等等,相较于明杆式安装的闸门来说,占用空间小,多用于不适合明杆式安装的场所,比如应用于景区或空间狭小的地方,具有安装操作方便,使用寿命长,止水面可采用镶铜止水,止水效果好等优势。

二、海南dn300暗杆式铸铁圆闸门外形安装技术尺寸参数

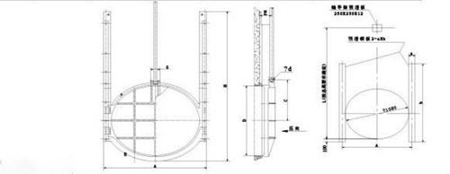
AYZ型dn300暗杆式铸铁圆闸门外形安装技术尺寸参数

永盈彩票1、AYZ型dn300暗杆式铸铁圆闸门外形安装技术尺寸参数

A:460mm

B:300mm

C:200mm

E:80mm

H:540mm

∅d:20mm

永盈彩票n-d1:4×M12mm

AXY型dn300暗杆式铸铁圆闸门外形安装技术尺寸参数

2、AXY型dn300暗杆式铸铁圆闸门外形安装技术尺寸参数

A:470mm

B:515mm

C:400mm

D1:414mm

D2:464mm

E:150mm

F:57mm

G:83mm

H:935mm

I:303mm

J:30mm

a×a:20×20mm

永盈彩票b×b:23×23mm

n1:2mm

d1:M18×500mm

n2:12mm

d2:M22×80mm

a3:30mm

海南dn300暗杆式铸铁圆闸门结构特点优势

三、海南dn300暗杆式铸铁圆闸门结构特点优势

1、结构简单通常由门框、闸板、导轨、密封条、传动螺杆、吊耳、紧闭斜铁等组件构成;

2、运行平稳可靠,通常采用螺杆启闭机或卷扬启闭机做为启闭动力,使挡水闸门闸板演预定轨道上下运动来实现闸门的启闭;

永盈彩票3、材质通常采用灰口铸铁或球墨铸铁,耐腐蚀性能优良,可用于清水或污水的环境,PH值在5~10之间;应用广泛;

4、止水效果优良,多数情况下止水面采用镶铜,密封面每米长度正向渗水量≤0.7L/min·m,反向≤ 1.25L/min·m;;

5、安装简便,因为闸门的尺寸比较小,因此通常采用整体安装的形式,安装简便;

6、门体通常采用面板与加强肋的结构,门体通常为整体铸造,且带有“#”字加强筋,加强筋的数量视闸门规格大小而定,一般间距为250~350mm之间,因此结构稳定可靠;

永盈彩票7、门体、门框在厚度上留出2mm的腐蚀裕度,门体与门框导向槽间隙小于1.6mm,放心选购!

四、海南dn300暗杆式铸铁圆闸门启闭机安装要点

1、海南dn300暗杆式铸铁圆闸门安装要点

海南dn300暗杆式铸铁圆闸门安装要点

2、海南dn300暗杆式铸铁圆闸门配型启闭机安装要点

海南dn300暗杆式铸铁圆闸门配型启闭机安装要点

五、海南dn300暗杆式铸铁圆闸门厂家实力

海南dn300暗杆式铸铁圆闸门厂家实力

总结:

以上就是关于海南dn300暗杆式铸铁圆闸门的内容了,瑞鑫厂家拥有大量的现货,批量采购九折优惠!厂家始终本着诚信经营的原则,支持货到结款,认准老牌水利闸门启闭机工厂,合作共赢!

微信扫码咨询

联系人:武经理

永盈彩票手机:13933744225

永盈彩票电话: 0319-4786765

传真: 0319-4845306

邮箱: 776150030@qq.com

永盈彩票网址:passionvietnam.com  

地址:河北省邢台市新河县城北工业区

天天中彩票-Welcome首页 乐盈VI 500505百万文字论坛综合资料-500308百万文字论坛-780790百万文字论坛红字-798790百万文字论坛下载-500505百万文字论坛雷锋版 佰富彩-安全购彩 98彩票|官方网站 800彩票 - 首页 乐发vll500 佰富彩-welcome