联系人:武经理
手机:13933744225
永盈彩票电话: 0319-4786765
传真: 0319-4845306
永盈彩票邮箱: 776150030@qq.com
网址:passionvietnam.com
地址:河北省邢台市新河县城北工业区
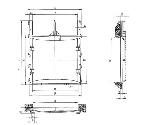
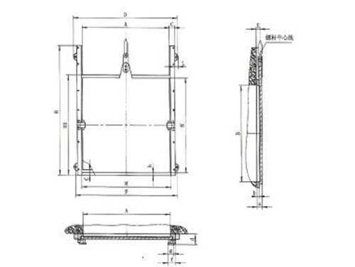
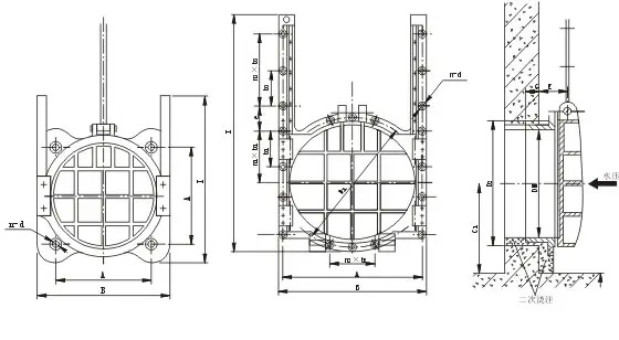
铸铁闸门是水利闸门中特别常见的一种闸门,具有结构简单、经济耐用等优势特点,其常见的两种类型为PGZ型和PZ型,由于安装形式、挡水方向、外部形状、用途的不同又分为很多种类,比如有:明杆式铸铁闸门、暗杆式铸铁闸门、单向止水铸铁闸门、双向止水铸铁闸门、铸铁方形闸门、铸铁圆形闸门等等,当然这些闸门的止水通常都可以采用镶铜止水的方式,因此又被成为铸铁镶铜闸门,瑞鑫小编一一为大家说明!

一、PGZ平面拱形铸铁闸门结构图

二、PZ平板铸铁闸门结构图

三、明杆式铸铁闸门结构图

四、暗杆式铸铁闸门结构图

五、单向止水铸铁闸门结构图

六、双向止水铸铁闸门结构图

七、铸铁方形闸门结构图

八、铸铁圆形闸门结构图

九、双向转动闸门结构图

十、机闸一体闸门铸铁闸门结构图

总结:
通过以上不同类型的铸铁闸门的结构图不难看出,铸铁闸门的结构组件非常简单,主要由闸框、闸板(门页、挡水板)、导轨、吊耳、传动螺杆、可调密封机构等组件构成,铸铁闸门门页在启闭机作用下,沿着预定轨道滑动来实现挡水的目的,因此也称为挡水闸!而像暗杆式铸铁闸门和双向止水铸铁闸门是在工程项目的需求下逐步改进形成,暗杆式适用于安装空间位置有限的场所,或者是景区,更加美观,双向止水铸铁闸门是在原有的结构上改进了闸门的密封机构,从而可以使闸门实现双向止水,比如应用于水库或水利工程的进出水口等位置。方形和圆形主要由水利工程项目要求而定,仅仅是改变了闸门的外部形状,结构组件基本一样,对于圆形闸门中的法兰式铸铁闸门来说,是改变了闸门外部链接方式,主要应用于管道水利工程项目。单吊点铸铁闸门和双吊点铸铁闸门永盈彩票同种型号的结构一样,仅仅是闸门的尺寸不同,双吊点的仅仅是尺寸比较大,为了闸门的启闭更加平稳顺畅才设置两个吊点。瑞鑫水工常规型号的闸门不但长期由现货,而且非常规型号的闸门,通常情况下,来图来样可为用户定制生产!