联系人:武经理
手机:13933744225
永盈彩票电话: 0319-4786765
传真: 0319-4845306
邮箱: 776150030@qq.com
永盈彩票网址:passionvietnam.com
地址:河北省邢台市新河县城北工业区
500*500铸铁镶铜方闸门厂家,瑞鑫水工大厂供应,货真价实,货源充足,常年促销,一套起批,验货结款,批量采购优惠多多!发货速度快,通常三天即可发货,免费提供安装技术指导,可为您提供从闸门采购,到配型启闭机,到售后安装一站式服务,选闸门认准瑞鑫水工品牌,让您无后顾之忧!

一、500*500铸铁镶铜方闸门报价信息
500*500铸铁镶铜方闸门的型号比较多,比如有明杆式、暗杆式、双向止水、单向止水、露顶式、潜没式,还有拱形的、平板型的等,材质有球磨铸铁、灰口铸铁的,常见的适用水头有3米的,6米的,还有更高的,因此报价不一,主要是工程项目要求来报价,通常在500元-1500元一套。
二、500*500铸铁镶铜方闸门结构特点
1、外形结构为方形,适用于方形洞口,在高度和宽度尺寸相同;
永盈彩票2、闸板与闸框通常采用整体铸造,结构稳定性好;
3、止水面采用镶铜止水,止水效果优良;
永盈彩票4、本厂在生产过程中闸框和闸板做了加厚处理,留有腐蚀裕量,使用寿命更长;
5、闸板背面有十字加强筋,承压能力更强;
永盈彩票6、闸板有拱形和平板两种形式,可满足您的不同需求;
7、可配手动启闭机、手电两用启闭机、电动启闭机等。

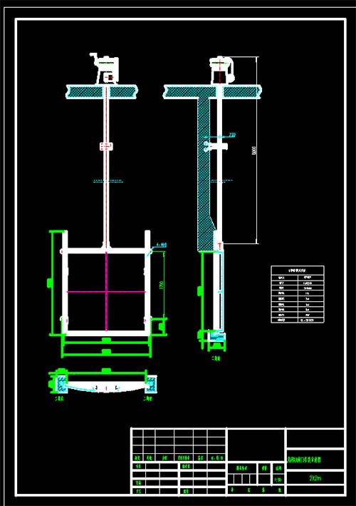
三、500*500铸铁镶铜方闸门结构图

四、500*500铸铁镶铜方闸门应用
1、500*500铸铁镶铜方闸门低水头的,比如3米、6米的多用于农田灌溉永盈彩票、水产养殖、污水处理厂、市政水利等水利工程中的渠道,河道、水渠等场景,通常承受的水压不大。
2、500*500铸铁镶铜方闸门高水头的通常应用于水库、大坝等进出水口,通常承受的水压比较大;
3、对于暗杆式安装的,多应用于城市水利、景区水利,更美观,还不会占用太大空间。

五、选购指南
1、选购时需要注明是单向止水还是双向止水,是暗杆式安装的,还是明杆安装;
2、说明是拱形的,还是平板的;
3、说明是深水闸,害死普通闸门;
永盈彩票4、以上报价信息仅供参考,实际价以实物电议为准!
六、售后服务
1、免费提供安装技术指导;
2、终身免费维修;
永盈彩票3、批量采购可安排专车发货;
4、24小时免费提供售后咨询服务。