联系人:武经理
手机:13933744225
电话: 0319-4786765
传真: 0319-4845306
邮箱: 776150030@qq.com
网址:passionvietnam.com
地址:河北省邢台市新河县城北工业区
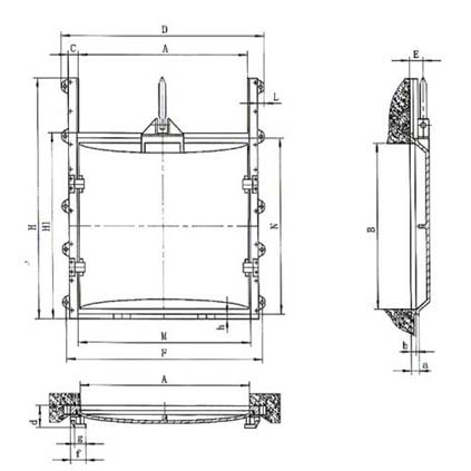
永盈彩票平板式铸铁闸门是从闸板是否有弧度来命名的,属于平面闸门的一大类,止水可镶铜又称为平板式铸铁镶铜闸门,亦可制作为双向止水的形式,也被称为平板式铸铁双向止水闸门,可以墙壁式安装,因此也被称为墙壁式平板铸铁闸门,有方形、可组合,可单吊,可双吊点,因此,用户可定制,本厂都可为用户定制生产。

一、平板式铸铁闸门简介
平板式铸铁闸门是一种结构简单,规格型号多种多样,用途比较广泛的水利闸门之一,比如可用于农田灌溉、水产养殖、化工、纺织、水利水电行业,具有良好的抗腐蚀能力,操作灵活方便、安装简单,维护成本低等优势特点。
二、平板式铸铁闸门结构原理
1、结构
主要由闸板、闸框、吊耳、导轨、压紧锲块(紧闭斜铁)等组件构成,其中闸框、闸板主要由灰口铸铁或球墨铸铁铸造加工而成,密封面采用精加工或镶铜来实现良好的止水效果,闸板的背面通常有十字加强筋来增强闸门的抗压能力。
2、原理
通过配型启闭机来做为驱动力使闸门在导轨上实现上升、下降或停留来,从而实现控制调节水流量大小。

三、常见的尺寸型号
本厂可为用户提供0.2*0.2m到6*6m的多尺寸规格型号的产品,亦可定制加工,详细的型号尺寸参数可参考本站《PZ型平板滑动铸铁闸门规格型号大全》或《小型PZ型平板铸铁滑动闸门》 ,其中包含了常见的此型号闸门外形尺寸、安装尺寸、重量、地脚螺栓等内容。
四、产品特点
1、挡水板在同一个平面内,没有任何弧度,通常背面有十字加强筋,抗压能力强;
2、启闭灵活,无卡顿,小型的平板闸门的闸框通常即为导轨,经过机械加工后,导轨表面光滑,闸门启闭运行平稳;
3、通常跟螺杆启闭机配套适用,可电动启闭机、可手动启闭,亦可同时具备电动和手动启闭机两种方式,用户可选购配型启闭机空间大;
永盈彩票4、耐腐蚀能力强,继承了铸铁材质的优良特点,可适用于海水等其他带有腐蚀性的液体中;
5、使用寿命长,本厂生产的此款闸门的门框厚度都增加2mm的腐蚀裕量,因此具有更长的使用寿命;
永盈彩票6、维护简单,此种型号的闸门的止水通常采用硬止水,因此无需更换止水条,后期可通过调整紧闭斜铁来实现良好的止水;
7、密封座采用沉头螺栓连接,且其表面粗糙度不大于3. 2μm,加工后的密封板厚不小于6mm;
8、当门板在全闭位置时,门板与门框的各楔紧面应同时相互楔紧,因此无需担心闸门止水效果;

五、应用
可应用于水利水电、纺织、化工、农田灌溉、渠道、水产养殖等行业的水流的调节。
六、常见问题
1、安装问题,许多用户常常会因闸门的安装不当导致闸门安装后漏水,因此,在闸门安装时需要按照本厂的闸门的安装详细安装说明来安装;
2、操作不当问题,在闸门开启或关闭时候没有正确按照操作步骤来操作,导致相关部件损坏,比如在闸门开启或关闭时,在接近限位装置时没有停留,直接关闭,可能导致限位装置的损坏。
总结:以上就是关于平板式铸铁闸门简介、原理、特点、应用及常见问题的内容了,本厂常年事水工机械设备的生产、销售、安装,可为用户定制生产各种型号的铸铁闸门、异型闸门、螺杆启闭机、卷扬启闭机、钢制闸门、翻板坝、翻板闸门、液压坝等水工机械产品,同时本厂拥有大量现货,也支持货到结款!期待您大到来。