联系人:武经理
手机:13933744225
电话: 0319-4786765
永盈彩票传真: 0319-4845306
邮箱: 776150030@qq.com
网址:passionvietnam.com
永盈彩票地址:河北省邢台市新河县城北工业区

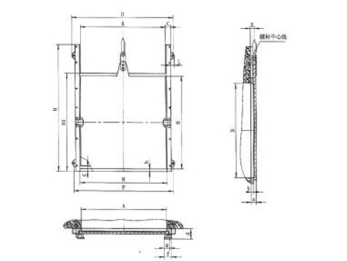
PZ小型平面铸铁滑动闸门常见型号尺寸参数
| 规格型号(m) | 0.2×0.2 | 0.3×0.3 | 0.4×0.4 | 0.5×0.5 | 0.6×0.6 | 0.8×0.8 | 1×1 | |
| 尺寸参数(mm) | A | 200 | 300 | 400 | 500 | 600 | 800 | 1000 |
| B | 200 | 300 | 400 | 500 | 600 | 800 | 1000 | |
| C | 30 | 30 | 30 | 40 | 40 | 50 | 50 | |
| D | 320 | 420 | 520 | 640 | 740 | 980 | 1180 | |
| E | 30 | 30 | 35 | 40 | 90 | 95 | 100 | |
| F | 290 | 390 | 490 | 610 | 710 | 940 | 1140 | |
| L | 30 | 30 | 30 | 30 | 30 | 40 | 40 | |
| H | 400 | 500 | 600 | 700 | 800 | 1200 | 1440 | |
| H1 | 260 | 360 | 460 | 580 | 680 | 900 | 1100 | |
| M | 205 | 305 | 405 | 508 | 608 | 810 | 1010 | |
| N | 230 | 330 | 430 | 540 | 640 | 850 | 1050 | |
| a | 34 | 34 | 40 | 42 | 45 | 48 | 55 | |
| b | 24 | 24 | 28 | 30 | 30 | 30 | 35 | |
| d | 64 | 64 | 85 | 77 | 76 | 76 | 85 | |
| f | 75 | 75 | 75 | 75 | 75 | 80 | 85 | |
| g | 30 | 30 | 30 | 30 | 30 | 35 | 40 | |
| h | 15 | 15 | 15 | 20 | 20 | 20 | 25 | |
| 重量(kg) | 板重 | 11 | 16 | 26 | 45 | 102 | 126 | 185 |
| 总重 | 23 | 31 | 50 | 95 | 182 | 244 | 311 | |

PZ小型滑动铸铁闸门与PGZ型的区别在于闸板是平板还是带弧形或者说拱形的,如果带拱形则是PGZ型,不带则是PZ型。其主要组件由以下几种:
1、闸框;
2、闸板,闸板又由上横梁、下横梁、左直梁、右直梁组成;
3、吊座吊耳;
4、紧闭斜铁;
5、固定螺栓。
另外,小型平面铸铁闸门通常为整体形式安装,也被称为整体式铸铁闸门。