永盈彩票

永盈彩票是从事水工机械研发、生产、销售于一体厂家。
联系方式 more +

联系人:武经理

手机:13933744225

永盈彩票电话: 0319-4786765

传真: 0319-4845306

永盈彩票邮箱: 776150030@qq.com

网址:passionvietnam.com  

地址:河北省邢台市新河县城北工业区

永盈彩票

广西渠道铸铁闸门启闭机厂家批发,货到结款

发布日期:2022-10-05 21:49:08浏览:482 次

永盈彩票广西渠道铸铁闸门启闭机厂家批发找瑞鑫水工,十六年专注水工闸门启闭机研发生产、销售、安装,产品质量可靠,工厂爆款货源批量发货,规格型号从0.2米*0.2米到3米*3米都有,厂家依据规格型号尺寸报价,从几百元到万元不等,支持定制生产、可货到结款。

广西渠道铸铁闸门启闭机厂家批发,货到结款

一、广西渠道铸铁闸门启闭机产品特点

永盈彩票1、规格型号齐全,现货量大,通常可即定即发;

2、原材料质量把控严格,厂家拥有稳定的原材料供应商;

3、应用范围广,可用于农田渠道、水产养殖渠道、市政水利工程渠道、化工厂污水处理渠道闸门等;

永盈彩票4、铸铁材质常见有两种,一种为灰口铸铁,另外一种为球磨铸铁,用户可依据自己需求选择;

永盈彩票5、可配型启闭机机型多种多样,有QLT型手轮螺杆启闭机、QL手电两用螺杆启闭机、QLD电装螺杆启闭机等,用户可依据工程项目设计要求选配;

6、铸铁渠道闸门止水通常采用硬止水,硬止水材料有两种,一种是钢止水,另外一种是镶铜止水,工程项目有要求的可采用镶铜止水,不管那种止水方式,都是由本厂生产技术经验丰富的师傅精心研磨,平整度高,止水效果好!

二、广西渠道铸铁闸门常见规格型号

广西渠道铸铁闸门规格型号种类繁多,常见的型号有PGZ型、PZ型、圆形、方形、机闸一体铸铁闸门等,尺寸从200mm*200mm到3000mm*3000mm的都有,具体的规格型号参数可参考本站《型号参数》栏目。

广西渠道铸铁闸门部分常见规格型号

三、广西渠道铸铁闸门启闭机图解

不同型号、不同安装方式的渠道铸铁闸门启闭机图解都有所不同,下面以尺寸2米×2米,型号为PGZ型的,采用单吊点QL型手电两用螺杆启闭机为例,为大家说明。

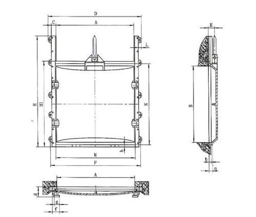
A、渠道铸铁闸门图解

2米×2米PGZ型渠道铸铁闸门图解

渠道铸铁闸门通常由闸框、闸板、吊耳、压紧锲块等组件构成,通过铸铁拱形闸门的闸板的上下滑动来实现调节水流量的大小,其特点在于挡水板的迎水面为拱形,拱形结构增加了其抗水压的能力,止水采用钢或镶铜的形式。

B、单吊点QL型手电两用螺杆启闭机图解

QL型手电两用单吊点螺杆启闭机图解.jpg

渠道闸门启闭机图解说明:

1、去掉电器部分即为手动式启闭机;

2、大吨位启闭机配有电控箱;

3、电动式启闭机用户可配带高度计(电子式或机械式,用户自行选择);

永盈彩票4、用户要求时可配手电互锁机构或螺杆防尘罩(用户自行选购);

永盈彩票5、有要求的用户可配机械式过载保护或电子式过载保护;

6、QL40、QL50型,无水平方向中间两地脚布置地。

四、广西渠道铸铁闸门启闭机安装要点及安装图片

渠道铸铁闸门启闭机的安装形式常见的有附壁式安装、平底式安装、明杆式安装、暗杆式安装等等,其安装要点可参考本站《渠道闸门的安装步骤及安装注意事项》,需要注意的是不同的安装形式,不同的闸门尺寸、不同型号的启闭机都会导致安装要点会有所区别,比如渠道闸门配套QL型单吊点启闭机和QL型双吊点启闭机的安装及布置结构图都会有些区别更多安装操作内容,可参考本站《安装操作》永盈彩票栏目,友情提示网站内所有内容仅供参考,不可做为施工依据,关于渠道铸铁闸门启闭机后期的安装操作,本厂可为用户配备专业的技术人员协助用户完成!

微信扫码咨询

联系人:武经理

手机:13933744225

电话: 0319-4786765

传真: 0319-4845306

永盈彩票邮箱: 776150030@qq.com

永盈彩票网址:passionvietnam.com  

地址:河北省邢台市新河县城北工业区

天天中彩票-Welcome首页 乐盈VI 500505百万文字论坛综合资料-500308百万文字论坛-780790百万文字论坛红字-798790百万文字论坛下载-500505百万文字论坛雷锋版 佰富彩-安全购彩 98彩票|官方网站 800彩票 - 首页 乐发vll500 佰富彩-welcome