联系人:武经理
手机:13933744225
电话: 0319-4786765
永盈彩票传真: 0319-4845306
邮箱: 776150030@qq.com
永盈彩票网址:passionvietnam.com
地址:河北省邢台市新河县城北工业区
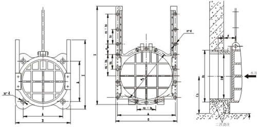
永盈彩票铸铁闸门在农村灌溉泵站、小型水库和市政排水工程里太常见了,但你真知道怎么选对吗?我干了10年,带过200多个项目,客户常问:“为啥我家闸门一用就漏水?”“开半天都打不开?”归根结底,还是选型和安装没搞清楚。今天不讲虚的,就拿我上次那个山东寿光的灌溉泵站项目说事——当时客户图便宜买了便宜铸铁闸门,结果半年后闸板变形、密封失效,拆下来一看,灰铸铁牌号根本达不到GB/T 9439-2023要求的HT200,这才叫花钱买教训。
永盈彩票农村灌溉泵站:水流平稳、启闭频率高,ZM型明杆铸铁闸门,阀体用HT250灰铸铁,密封面加装铜合金镶套,防锈又耐磨。
永盈彩票小型水库泄洪口:水压大、冲刷强,必须选暗杆式(ZM-A型),闸板要带加强筋,埋深≥1.5米,避免因水锤导致断裂。
永盈彩票市政排水管道:常有杂物,建议选带过滤栅的铸铁闸门,防止堵塞,同时闸槽要预留清淤通道,否则后期清理比换闸还费劲。
壁厚≥12mm(按SL 176-2007,结构件需做强度校核);
闸板与导轨间隙≤2mm,否则易卡死;
密封圈用三元乙丙橡胶(EPDM),耐老化,寿命≥8年;
永盈彩票手动启闭力不超过150N,不然老人操作都吃力。
安装要点我重点提醒三点:
闸槽预埋前必须水平调准,偏差≤3mm/m,否则后期闸板歪斜;
永盈彩票丝杆与闸板连接处加装限位螺母,防止运行中脱扣;
永盈彩票安装后必须做0.1MPa水压试验,保压30分钟无渗漏才算合格。
常见问题及解决办法:

漏水:多数是密封圈老化或安装时未压紧,重新拧紧压板+更换新密封圈即可;
启闭困难:检查导轨是否变形或有异物卡住,清理后加注润滑脂;
闸板脱落:丝杆螺纹磨损或未装限位,立即停机检修,补装限位装置。
记住:铸铁闸门不是越便宜越好,关键是匹配工况、符合标准、安装到位。别等到出事了才后悔。下次选型,先问我一句“这个项目用什么型号*合适”,我给你把关!