永盈彩票

永盈彩票是从事水工机械研发、生产、销售于一体厂家。
联系方式 more +

联系人:武经理

永盈彩票手机:13933744225

电话: 0319-4786765

传真: 0319-4845306

邮箱: 776150030@qq.com

网址:passionvietnam.com  

永盈彩票地址:河北省邢台市新河县城北工业区

安装操作

ZMY型铸铁镶铜圆闸门厂家简介安装施工注意事项

发布日期:2022-02-09 22:00:02浏览:436 次

瑞鑫水工是生产ZMY型、ZMFY型、AXY型、AYZ型、ZAQY型、ZMQY型铸铁镶铜圆闸门的厂家,近期发现很多用户在购买后不太清楚该如何安装或在安装中经常会出现各种各样的问题,在此,瑞鑫小编为大家详细说明一下ZMY型铸铁镶铜圆闸门安装施工注意事项,希望对大家有所帮助!

ZMY型铸铁镶铜圆闸门厂家简介安装施工注意事项

一、ZMY型铸铁镶铜圆闸门安装施工注意事项

1、此款类型的闸门的安装与常见的平面滑动铸铁闸门安装一样,需要整体安装就位,不可拆开分别安装闸框和挡水板(闸板);

2、在安装前,需要检查相关组件的螺栓是否有松动或构件是否在运输过程中产生不可逆的变形,如果有需要及时联系厂家,凡是本厂生产的产品如确实因产品质量或运输造成损坏,本厂支持无条件退换货;

3、复查预留孔洞和螺栓的定位尺寸是否准确,如有偏差应及时调整;

4、用吊铅锤直线方法预埋预埋件,保证其表面和垂直度为1.5~3‰范围内。

5、轴导架和启闭机装置的安装:将丝杆穿入启闭机,在此,需要注意启闭机中间,丝杆轴心,闸门对称中线应在同一条铅垂线上

6、当螺杆细长比(提升杆长度/螺杆外径)4H/d>200时应设置轴导架,轴导架距闸门吊耳距离应大于闸门zui大开启度

7、压紧楔块的调整:调整前,应先检查闸门密封情况,如有渗漏不符合标准,应调整门框两侧的压紧楔块,使其符合止水标准效果后为止;

8、注意同规格闸门的门体、门框不允许互换,且未安装前应水平放置,防止铸件变形影响止水效果,同时丝杆以及联接杆不可受力弯曲

9、在闸门的安装过程中,应对青铜密封面做好保护,不得损坏。

二、ZMY型铸铁镶铜圆闸门的结构及优势特点:

铸铁圆闸门由门框、闸板、导轨、密封条、启闭机、丝杆、可调整密封机构等部件组成,具有结构简单,密封性能好,耐磨性强,操作简单,安装方便,使用寿命长,规格齐全,适用性广等特点,其中门框和闸板均由**灰口铸铁或球墨铸铁制成,导轨左右对称布置且用不锈钢螺栓定位销与门框二侧端部连接 (对中小口径的闸门,其导轨可与门框浇注成一体),导轨长度一般为闸门全开启高度的1/2~1/3,因而整体结构强度高、刚性高、耐磨、耐腐蚀性好、承压能力大。客户可根据需要选配手动启闭机、手摇启闭机、气动启闭机、液动启闭机、电液动启闭机或者手电两用启闭机,实现现场操作或远距离集中控制,还可与微机联动控制。

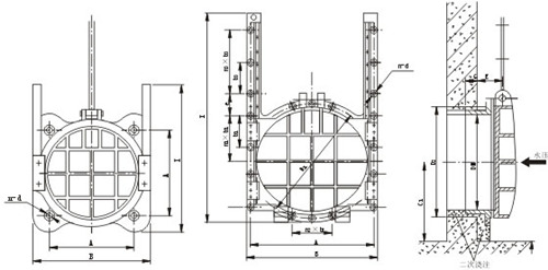
ZMY型铸铁镶铜圆闸门安装施工布置结构图

三、铸铁镶铜闸门主要性能指标: 

1、闸门密封面配合间隙≤0.1㎜,密封座厚度大于10㎜。 

2、密封面每米长度渗水量:正向≤0.7L/min ·m   反向≤1.25L/min ·m 

3、公称压力≤0.1Mpa;密封试验压力0.1Mpa。 

4、工作环境:温度-20℃~120℃   湿度:95%    工作介质:水与污水PH值:5~10

5、安装位置:正常状态下正向迎水、处于铅垂状态。 

6、工作水头:单向受压:正向:10m   反向:5m   双向受压:均为10m 

8、启闭速度:不小于0.2m/min,不大于1.5m/min。 

9、闸框距边壁距离≥300㎜,距池底距离≥150㎜~250㎜。

总结:以上就是关于ZMY型铸铁镶铜圆闸门的安装施工注意事项及其结构优势特点和主要性能指标的内容了,那么ZMY型铸铁镶铜圆闸门常见的规格型号及安装布置尺寸是怎么样的呢?欢迎关注我们的网站,可在本站的产品详情中查阅。

微信扫码咨询

联系人:武经理

手机:13933744225

永盈彩票电话: 0319-4786765

传真: 0319-4845306

邮箱: 776150030@qq.com

网址:passionvietnam.com  

地址:河北省邢台市新河县城北工业区

天天中彩票-Welcome首页 乐盈VI 500505百万文字论坛综合资料-500308百万文字论坛-780790百万文字论坛红字-798790百万文字论坛下载-500505百万文字论坛雷锋版 佰富彩-安全购彩 98彩票|官方网站 800彩票 - 首页 乐发vll500 佰富彩-welcome