联系人:武经理
手机:13933744225
永盈彩票电话: 0319-4786765
永盈彩票传真: 0319-4845306
邮箱: 776150030@qq.com
永盈彩票网址:passionvietnam.com
永盈彩票地址:河北省邢台市新河县城北工业区
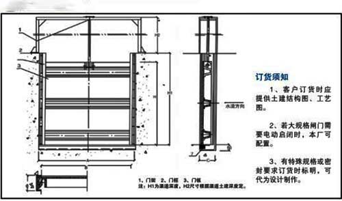
渠道闸门是用于各种水渠的一种水闸,常见的材质有三种,一种是铸铁材质,一种是钢材质,另外一种是不锈钢材质,不同材质的渠道闸门的安装、安装注意事项有一定的区别,其中钢材质和不锈钢材质的安装基本相同,下面分别说明铸铁渠道闸门安装步骤注意事项和钢制渠道闸门安装注意步骤注意事项。

一、铸铁渠道闸门安装步骤及注意事项:
A、铸铁渠道闸门安装步骤
1、检查其各组件是否完好,连接部分是否有松动,复测预埋件及槽孔的位置;
2、放线钻孔;
3、整体吊装就位,调整号位置后,再用膨胀螺栓将门框固定在构筑物上,同时检测其垂直度是否符合相应的规范标准。
4、进行二次浇注,同时需要及时清理掉落在闸板、闸框、斜铁、挡板之间的灰浆,确保闸框和墙面密封。

B、铸铁渠道闸门安装注意事项
1、安装前的检查,主要包括有以下几个方面:
a.零部件的检查,主要查看零部件是否完好、组装是否正确、构件清理是否干净等;
b.检查横框与立框之间的止水面是否在同一个平面内;
c.检查渠道闸门各部件连接部位的螺栓是否有松动,如有,需紧固。
2、为了防止在安装闸框的变形,渠道闸门通常情况下应整体安装,严禁闸框和闸板分开安装;
3、轨道(主轮、侧轮和反向轮转向架)须由门页结构支撑,因门页结构需要通过导轨将水压传递给桥墩
4、浇口位于防水胶上的相应位置;
5、在浇注商砼时,应注意及时清理闸门间隙中的灰浆,防止后期使用时影响闸门的开启或关闭;
6、钢筋混凝土附着在门槽和开口的边缘以保护混凝土;
7、在吊装就位后,二次浇注前,应确保螺栓与混凝土结构牢固连接。
8、安装位置注意事项:.不需要经常操作的渠道闸门,且在地面上无法操作时,应布置于方便架设临时梯子的地方;渠道闸的高度通常情况下为1200mm,不需要经常操作的,安装高度位置可在1500~1800mm之间;安装于管沟内,不低于沟盖板300mm的位置;渠道闸门框和门体安装在水下,导轨安装在门框的上端。

二、钢制渠道闸门安装步骤及安装注意事项
A、钢制渠道闸门安装步骤:基础复测校核→开箱检验→基础测量放线→钢制渠道闸门安装→导杆安装找正→启闭机安装→二次找正→闸门灌浆→检验与调试
1、基础复测校核与开箱检验:复测土建工程的标高及预留槽的尺寸是否与满足设计图要求,以及检查所有的埋件留孔要求是否符合安装条件;检查设备的规格、性能是否符合图纸要求,检查设备外表如门框、门体、启闭支架及启闭装置等是否受损变形,零部件是否齐全完好。
2、基础测量放线:测量主、反轨道厚度的尺寸和闸门的厚度尺寸,三者尺寸之和应小于闸槽的预留尺寸,如小于的话可以准备安装,反之要设法找原因解决;测量、寻找吊点中线线和闸门底止水的位置尺寸,明确闸门的底止水在闸槽的位置。
3、钢制渠道闸门安装:将钢制闸门门槽置入土建预留的凹槽内,将门槽外侧的错筋与槽内预埋钢板焊接;
4、将启闭机门架与基础平台的预埋钢板焊接,并检查门架上的启闭机中线与门板螺杆中线是否在同一个铅垂线上;
5、将二次灌浆混凝土范围内的墙体先行凿毛,以保证闸门框与墙壁二次灌浆混凝土的紧密结合,不渗漏。
6、钢制渠道闸门调试,在调试过程中钢制渠道闸门应下升降灵活,传动螺杆啮合良好,无卡阻等异常现象;
7、渠道钢制闸门在现场进行渗水试验,在设计压力条件下,渠道闸门的渗漏量应小于0.01L/min·m。

B、渠道钢制闸门安装注意事项
1、门槽外侧的错筋与槽内预埋钢板焊接时,需要注意保证两侧门槽的平行度与垂直度偏差均小于1/1000;
2、应注意启闭机中线与门板螺杆中线垂直度偏差的控制值应小于1/1000,否则会影响钢制渠道闸门的顺利启闭或引起闸门启闭出现卡顿;
3、在闸门安装前,需要注意看准流水方向和闸门是前止水还是后止水,以免发生闸门安装反,导致返工;
4、门体的密封面应紧密贴合,无间隙产生;
5、在焊接,不同材料的焊口,需要注意使用相应焊条进行焊接,在焊接完毕后,需对粗糙焊接处进行打磨,使其表面呈现出平滑表现。
5、渠道闸门调试前需要注意对有轴承处加注润滑油,电动操作的驱动机构内应加注润滑油;
6、电动启闭机装置的行程和扭矩控制调整时,应考虑电机转动惯性和继续下降的余量,以避免闸门关闭到终点后才切断电源,而造成电机过载;
7、在渠道钢制闸门的安装过程中,应对密封面做好保护,不得损坏。
总结:以上就是关于铸铁材质和钢制材质的渠道闸门安装步骤、安装图及安装注意事项的内容了,在面对实际的水利工程项目安装时可能还会有这样或那样的问题,不过没有关系,本厂拥有安装经验丰富、技术成熟的安装技术团队,可免费提供安装技术指导,亦可安装技术人员入驻水利渠道闸门施工现场,全程协助用户安装!