永盈彩票

永盈彩票是从事水工机械研发、生产、销售于一体厂家。
联系方式 more +

联系人:武经理

永盈彩票手机:13933744225

电话: 0319-4786765

传真: 0319-4845306

永盈彩票邮箱: 776150030@qq.com

永盈彩票网址:passionvietnam.com  

地址:河北省邢台市新河县城北工业区

永盈彩票

吉林水库铸铁闸门生产厂家价格,找源头工厂

发布日期:2024-10-23 12:04:06浏览:465 次

吉林水库铸铁闸门生产厂家价格从小型的500多百元一套到大型的1万多元一套的都有,源头厂家通常是依据铸铁闸门的规格型号、重量、设计图纸来报价,源头厂家瑞鑫水工一直秉承工厂直接对接终端用户,保障用户安装售后服务质量!

吉林水库铸铁闸门生产厂家价格

一、吉林水库铸铁闸门结构。永盈彩票不同类型的铸铁闸门在结构上是不同,下面以比较常见的平面水库铸铁闸门来举例说明,其他类型的铸铁闸门的结构通常是在这种闸门的基础上改造而来。本厂还生产有明杆式闸门、暗杆式闸门、下开式闸门、组合式闸门、钢闸门等水库闸门。

举例:平面水库铸铁闸门结构

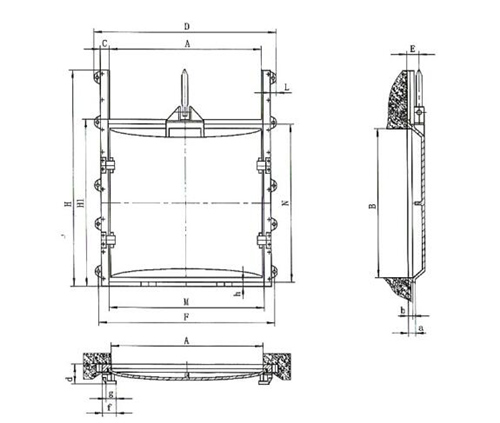
PGZ平面水库铸铁闸门结构图

1、结构

通过上面的闸门结构图可以看出:平面式铸铁闸门的结构非常简单,通常包括有门页(挡水板)、闸框、导轨、吊耳、止水压紧装置构成,吊耳用来连接螺杆启闭机的螺杆,止水压紧装置也被称为可调整密封机构等,因为铸铁闸门是通过闸门和闸框的紧密接触来实现密封止水,而不是通过橡胶止水带来密封止水,在使用时间长因为不可完全压紧而导致的漏水,可以通过调整压紧装置来实现良好的止水效果,小型水库铸铁闸门的门框和门页通常位一体浇铸而成,而对于2米以上的往往采用分开浇铸。导轨是用来固定铸铁闸门的门页,使其在导轨上能够平稳的上下运动,闸框是用来固定闸门,并将来自水流的压力传递到混凝土土建结构上。

2、结构分类

水库平面铸铁闸门从挡水板的外形结构上还可以分为两类,一类是PZ型,另外一类是PGZ型,两者的区别是PZ型的挡水板是平面的,没有弧度,而PGZ型的迎水面是带弧度的,也被称为平面拱形铸铁闸门。

PZ平板水库铸铁闸门结构

3、平面水库铸铁闸门结构尺寸

平面水库铸铁闸门结构尺寸可参考本站《PGZ平面滑动铸铁闸门厂家规格型号大全》《PZ平板滑动铸铁闸门规格型号大全》,1米以下的小型水库铸铁闸门结构尺寸可参考本站《0.2m*0.2m-1m*1mPGZ小型平面铸铁拱形闸门型号尺寸参数大全》

二、水库铸铁闸门原理

水库铸铁闸门原理非常的简单,就是以启闭机来提供动力,来实现水库闸门沿着预定轨道做升降运动,实现闸门的启闭,从而实现对水流量的调节控制。

三、安装步骤要点视频

永盈彩票1、熟悉水库铸铁闸门设计施工图纸,并检查水库铸铁闸门型号配件是否齐全,是否在运输过程中出现损坏,如果出现要及时联系厂家,本厂承诺如却因运输或产品质量问题,厂家无条件退换!

永盈彩票2、复测土建预埋件及相关尺寸标高等,如果不符需要及时调整;

吉林水库铸铁闸门安装步骤要点视频

3、水库铸铁闸门吊装就位:采用起重机起吊铸铁闸门时,利用闸门的地脚螺栓孔起吊,尽量采用门体门框一体吊装,当闸门的体积太大或者因为现场空间位置而无法进行整体起吊时,可将门体与门框拆解后,分别起吊,此种吊装方法需要注意保护闸门密封面和闸框,保护不到位可能会引起漏水,因为是铸造件,修理矫正非常麻烦。

4、安装门体:用塞尺检查铸铁闸门的上、下密封面的间隙,定要将间隙保持在0.1mm以内,如果间隙超标,可以在超标处的门门框背面垫入合适的斜铁,顺便将地脚螺栓慢慢的旋松,直到间隙合格为止;

永盈彩票5、浇灌水泥:安装水库铸铁闸门时,原有的水泥板会有损坏,所以在闸门四周的混凝土面板上用细砂浆混凝土进行二次浇灌,需要注意的是不得采用素混凝土,浇灌后要用振动泵捣固坚实,同时在二次浇灌混凝土完全凝固后,还应对固定螺栓进行检查;

6、安装启闭机永盈彩票:安装前在启闭机底板上和平台上画出对应的十字线,之后将启闭机的中线与平台上的十字线相对应,用水平仪对启闭机底板进行调平,再将丝杆的下端与闸门吊耳移到对应的位置,并检查丝杆的垂直度,使其误差小于1/500mm;

水库铸铁闸门安装现场图

7、安裝轴导架:把轴导架架体安装到指定位置,使其与预套在丝杆上的套管用螺栓紧固,保证轴导架管与丝杆处在同心位置,特别是下部分的轴导架,其闸门耳的距离大于闸门口径,余轴导架在闸门在启闭过程中不能碰到丝杆连接套;

8、安裝防护罩:安装启闭机护罩,并用螺栓紧固在启闭机顶部。

9、闸板是直接承受水压的挡水部件,因此在安装的过程中和安装完成后,应进行二次检查,应严格按照相关标准要求执行,以防产生严重的后果,对基础面进行二次浇灌时,应注意采用符合要求的水泥,这样才能保证其可靠性。

永盈彩票友情提示:了解更多关于水库铸铁闸门安装细节步骤可视频我们,采购本厂产品可免费提供视频教学安装或直接安排技术人员入驻施工现场协助安装。

四、水库铸铁闸门源头工厂实力

水库铸铁闸门源头工厂实力

总结:

以上就是关于吉林水库铸铁闸门生产厂家报价、结构、原理、安装步骤视频、源头工厂实力的内容了,本厂生产的水库铸铁闸门产品质量可靠,规格型号齐全,全天24小时售后服务,放心采购!

微信扫码咨询

联系人:武经理

永盈彩票手机:13933744225

永盈彩票电话: 0319-4786765

传真: 0319-4845306

永盈彩票邮箱: 776150030@qq.com

网址:passionvietnam.com  

地址:河北省邢台市新河县城北工业区

天天中彩票-Welcome首页 乐盈VI 500505百万文字论坛综合资料-500308百万文字论坛-780790百万文字论坛红字-798790百万文字论坛下载-500505百万文字论坛雷锋版 佰富彩-安全购彩 98彩票|官方网站 800彩票 - 首页 乐发vll500 佰富彩-welcome