永盈彩票

永盈彩票是从事水工机械研发、生产、销售于一体厂家。
联系方式 more +

联系人:武经理

手机:13933744225

电话: 0319-4786765

传真: 0319-4845306

邮箱: 776150030@qq.com

永盈彩票网址:passionvietnam.com  

地址:河北省邢台市新河县城北工业区

永盈彩票

山东矩形铸铁闸门厂家现货销售[无中间商差价]

发布日期:2025-09-28 10:44:45浏览:393 次

山东矩形铸铁闸们厂家现货销售,无中间商赚差价,生产厂家瑞鑫水工直接供应,产品质量可靠,原材料球墨铸铁或灰铸铁,规格型号尺寸齐全,可为用户定制生产,并且支持货到结款,让利用户,放心选购。

山东矩形铸铁闸门厂家现货销售[无中间商差价]

一、什么是矩形铸铁闸门

矩形铸铁闸门是指闸门的形状是矩形的,铸铁材质的水闸,型号的表示方法为MJZ,尺寸型号从MJZ500mm*1000mm的都有。

二、本厂矩形铸铁闸门的结构特点:

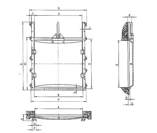
1、结构合理简单:由闸框、闸板、吊座及紧闭斜铁等零部件组成;

2、为克服传统钢闸门易锈蚀的缺点,本厂生产的矩形铸铁闸门的闸框、闸板全采用铸铁铸造,其中闸框又由上横梁、下横梁、左直梁、右直梁组成;

3、为了运输、安装方便,闸板一般根据其大小或高度情况,制作成上下几部分,然后工程现场拼装组成,安装方便;

4、密封效果好,正常渗水量L≤0.07L/m·s,闸框迎水面四周与闸板框四周背水面接触处经机械加工刨光,平直光滑、贴合严密,使结合面、止水面与运动滑道合三为一;

5、可为用户配套专用启闭机,仅需注明手动或电动即可,无需另外选用启闭机;

6、防腐蚀能力强,可在PH=6-8的流体酸碱中运用。

山东矩形铸铁闸门厂家现货销售[无中间商差价]

三、矩形铸铁闸门的分类

1、按闸板形状的不同,分为PZ平板和PGZ拱形两大类。具体选用可根据闸孔尺寸、承压水头、启闭型式、闸门自重等方面加以综合比较确定,各种规格型号的都有,亦可根据用户的需求定制生产;

2、按闸板结构的组合不同,分为整体式和组装式两大类,小规格的通常采用整体式,如果施工场地受运输条件限制,也可制成组装式的来方便人工运输,中等规格以上的通常采用组装式。

3、按照是否采用镶铜止水可分为矩形铸铁镶铜闸门和矩形铸铁闸门。

山东矩形铸铁闸门厂家现货销售[无中间商差价]

四、矩形铸铁闸门的应用:

1、可适用于宽度可达5m以上;

2、调节水位通常在800mm以下;

3、适用于交替运行的氧化沟排水,或大型配水井配水;

4、广泛应用于水利水电、市政建设、给水排水、水产养殖、农用水利建设等工程。

总结:以上就是关于本厂生产的矩形铸铁闸门的结构特点、分类及应用的内容了,友情提示,本厂可安排专业的技术人员入驻工程项目现场全程指导用户安装,现场解决用户的安装烦恼,同时本厂常见坚持量大从优的政策及优惠新用户的政策!

TAG标签:铸铁镶铜闸门
微信扫码咨询

联系人:武经理

手机:13933744225

永盈彩票电话: 0319-4786765

永盈彩票传真: 0319-4845306

邮箱: 776150030@qq.com

永盈彩票网址:passionvietnam.com  

永盈彩票地址:河北省邢台市新河县城北工业区

天天中彩票-Welcome首页 乐盈VI 500505百万文字论坛综合资料-500308百万文字论坛-780790百万文字论坛红字-798790百万文字论坛下载-500505百万文字论坛雷锋版 佰富彩-安全购彩 98彩票|官方网站 800彩票 - 首页 乐发vll500 佰富彩-welcome