联系人:武经理
永盈彩票手机:13933744225
电话: 0319-4786765
传真: 0319-4845306
永盈彩票邮箱: 776150030@qq.com
网址:passionvietnam.com
永盈彩票地址:河北省邢台市新河县城北工业区
MXF型明杆式铸铁镶铜方闸门是一款采用镶铜止水的明杆式方闸门,型号中的X表示镶铜,F表示闸门的形状为方形,M表示明杆式安装,厂家报价通常依据闸门的外形尺寸和重量,1米以下的厂家发货价通常在500到5000元不等,大型的上万元左右。

一、MXF型明杆式铸铁镶铜方闸门简介
MXF型明杆式铸铁镶铜方闸门是一种采用明杆式安装,平面加筋型、镶铜止水的水利闸门,具有止水效果好,耐腐蚀性能强,适用于安装在墙上的升杆式方型孔口闸门,其平整的内底与井壁紧密贴合,安装方便,由启闭机带动启闭螺母转动,在梯形螺纹作用下使丝杆带动闸门门体上下运行,以达到截断或疏通水流的作用。因此多用于水渠、河渠、农田灌溉、污水处理等水利工程,来调节控制水流量的大小。
二、MXF型明杆式铸铁镶铜方闸门型号尺寸
MXF型明杆式铸铁镶铜方闸门型号尺寸从200mm*200mm到6m*6m的都有,其外形具体尺寸参数可参考本站方闸门中的SFZ型闸门,当然来图来样,本厂可为您定制生产。
三、MXF型明杆式铸铁镶铜方闸门结构组件
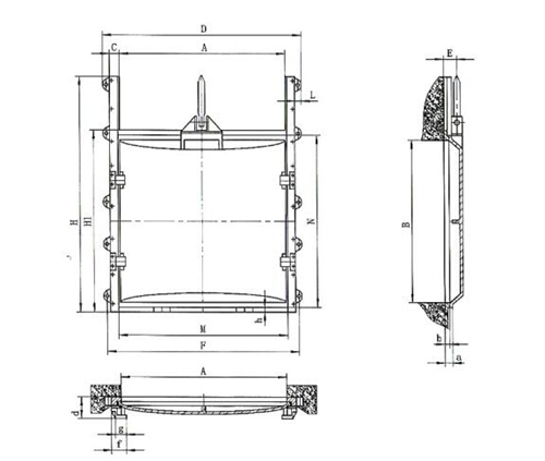
MXF型闸门结构图组件与其他常见的PGZ型拱形闸门、PZ型平板闸门的组件基本相同,就是由闸板、闸框、导轨、吊耳、密封装置、轴导架、紧固螺栓、紧闭斜铁等组成,属于平面滑动镶铜闸门中的一种,外形为正方形。

四、MXF型明杆式铸铁镶铜方闸门技术参数
1、材质为球磨铸铁或灰口铸铁
2、闸板压离门框允许额定大压力0.02MPa;
3、闸板压向门框允许额定压力0.1MPa;
4、密封工作部件渗漏量不大于1.25L/min.m。
五、MXF型明杆式铸铁镶铜方闸门安装
1、安装结构图

永盈彩票2、常见型号安装尺寸表
MXF-300mm到MXF-1000mm明杆式铸铁镶铜方闸门安装尺寸表

MXF-1200mm到MXF-2400mm明杆式铸铁镶铜方闸门安装尺寸表

MXF-2600mm到MXF-5000mm明杆式铸铁镶铜方闸门安装尺寸表

永盈彩票3、常见的安装形式有:靠墙式安装、附壁式安装、墙壁式安装、浇嵌式安装等形式,可根据用户需要和特定条件而定;
4、安装要点
永盈彩票a、镶铜方闸门应按图示位置安装,在安装前先确定水流方向,闸板的迎水面应确保安装正确;
b、安装前应检查闸门的外型尺寸和预留二期浇筑水泥结构基础布置孔口是否相符,通常情况下基础布置孔口四周尺寸须大于方闸门外型四周尺寸20公分为宜;
c、检查两边立闸框和上、下横闸框连接处的四周止水平面是否错位 ,若有错位,应用扳手松动连接处螺栓,将四周止水面调整在同一水平面;
d、校正镶铜方闸门底横框上平面的高度位置,闸门底横框上平面须高于河底(渠道底、河道底、河渠底)平面0.5米为宜,以防水流的冲激把石头、泥沙、杂木等漂浮物冲进闸门底横框槽内,造成闸门不能下降到相应位置影响止水效果;

e、对于小型的镶铜方闸门在安装的时候,应整体就位安装,禁止门板、门框分开安装,以防闸框弯曲变形影响止水效果和启闭;
f、明杆式铸铁镶铜方闸门吊装就位后,调整好前后、左右、上下的位置,将调整地脚螺栓与工程预制钢筋焊接牢固,然后用塞尺检测各止水面处的间隙,同时对间隙大于0.2mm的地方用高强度螺栓进行调整,要确保各止水面的间隙在0.2mm以下;
永盈彩票g、铸铁镶铜方闸门在二次浇筑前,背水面两边立闸框应用型钢或木杆支撑紧,以防水泥浇筑时挤压而造成两边立闸框弯曲变形,影响闸板在闸框滑道内上、下滑动,确认无误后方可进行二期浇筑;
永盈彩票h、明杆式方闸门二期浇筑水泥后,应及时清理流进闸板、闸框、紧闭压板间隙中的水泥浆,防止水泥浆凝固后,影响闸门启闭;
六、MXF型明杆式铸铁镶铜方闸门特点优势
1、耐腐蚀性能优良;
永盈彩票2、安装形式多种多样,用户可依据实际情况选购;
3、配型启闭机多种多样,可配型QL型、QDA型手电两用型永盈彩票、QLT型、QSY型等等;
永盈彩票4、启闭灵活,运行可靠,使用寿命长,应用范围广

七、MXF型明杆式铸铁镶铜方闸门操作维护保养
1、在开启和关闭过水孔口镶铜闸门时应注意闸板的上、下限位置,以免损坏闸门或启闭机;
2、铸铁镶铜方闸门在启闭过程中,如果有异常情况,应立即停止使用,并及时检查处理排除故障后,才能继续操作;
3、铸铁镶铜方闸门关闭时,在离闸底坎10公分处应将闸门暂停2分钟,利用闸门底坎激流冲净底槽内的砂石、杂物,然后再关闭。
八、MXF型明杆式铸铁镶铜方闸门应用
MXF型镶铜铸铁方闸门主要应用于城市给排水、防汛、农田灌溉、水利水电、污水处理厂及自来水厂等给水排水工程行业中,用以截止、调整水流水位。