联系人:武经理
手机:13933744225
永盈彩票电话: 0319-4786765
传真: 0319-4845306
邮箱: 776150030@qq.com
网址:passionvietnam.com
地址:河北省邢台市新河县城北工业区
永盈彩票江苏排水灌溉1500*2000铸铁闸门厂家发货价在4656元每套到1.15万每套之间,厂家发货价更低,因为工程项目的需求不同,厂家发货价也有所不同,比如有PGZ型、PZ型、暗杆式、明杆式、双向止水型、镶铜止水型等等,致电厂家免费获取一手报价,支持货到结款,保障产品品质!

一、江苏排水灌溉1500*2000铸铁闸门型号参数
1、外形尺寸1.5米*2米
2、吊点数:单吊点
3、适用水头:6米
4、板重:720千克
5、总重:1120千克
永盈彩票6、地脚螺栓:10-M16×300
7、止水面:可镶铜,即铸铁镶铜闸门
8、渗水量:正面渗水量≤0.7L/min·m,反向渗水量≤1.25L/min·m
9、配型启闭机:手动启闭机、手电两用启闭机
10、材质:灰口铸铁或球磨铸铁

二、江苏排水灌溉1500*2000铸铁闸门结构组件
江苏排水灌溉1500*2000铸铁闸门结构组件简单,通常由闸框、闸板、导轨、吊耳、吊座及紧闭斜铁等零部件组成,具有结构简单、运行平稳可靠、性价比高等优势特点。
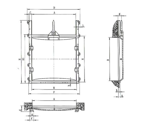
三、江苏排水灌溉1500*2000铸铁闸门安装尺寸
用于排水灌溉铸铁闸门永盈彩票的型号不同,安装尺寸也有所差异,下面以平面拱形铸铁闸门为例,给大家举例说明,以下安装尺寸仅供参考,具体施工当以施工设计图纸或实际施工尺寸标准为准。
永盈彩票A:1500mm、B:2000mm、C:60mm、D:1620mm、E:160mm、F:1590mm、H:2460mm、H1:2120mm、M:1545mm、N:2060mm、a:190mm、b:60mm、d:180mm、e:100mm
f:130mm、g:50mm、h:30mm、h1:150mm、h2:660mm、h3:500mm、h4:500mm、h5:500mm

四、江苏排水灌溉1500*2000铸铁闸门要点
1、由于1500*2000排水灌溉铸铁闸门的外形尺寸和重量相对都比较小,因此在安装的时候通常采用整体吊装就位,这样可以避免闸框变形;
永盈彩票2、在闸门运输到施工现场后,安装之前,需要检查相应的组件是否有松动或损坏,如果出现螺栓松动,应及时拧紧,如果组件损坏,本厂支持更换;
3、安装就位前后都应复测定位尺寸,看是否符合设计施工图纸,是否满足相关标准要求,避免返工;
4、如果位PGZ排水灌溉闸门应注意迎水面的方向是否正确,如果装反,闸门不单单会漏水,还有可能对闸门组件造成损坏,铸铁材质的,一旦损坏,修复困难。

五、江苏排水灌溉1500*2000铸铁闸门优势特点
1、可配型启闭机类型多种多样,比如QLZ型直连螺杆启闭机、QLC型侧摇螺杆启闭机永盈彩票、qsl型手摇螺杆启闭机、 QLT型手推启闭机、QL型手电两用螺杆启闭机等,用户可自行选配!
2、安装方便,仅需要按照相关要求将排水灌溉铸铁闸门整体安装就位到预定的位置即可;
永盈彩票3、操作方便,如果选配手电两用型,那即可以电动启闭机排水灌溉闸门也可以手动启闭闸门;
永盈彩票4、维护简单,由于是铸铁材质,闸门在出厂前也按照相应的喷涂标准做了防腐保护,因此后期维护简单,基本上不需要做太多的维护;
5、使用寿命长,无需更换止水带,因为铸铁材质的闸门通常采用硬止水,止水面为钢材质或镶铜材质,在使用时间长或止水面磨损后,也可以调节紧闭斜铁使闸门达到良好的止水效果。
总结:
永盈彩票江苏排水灌溉1500*2000铸铁闸门的出厂报价、型号参数、安装尺寸、安装要点、优势特点的内容了,瑞鑫水工,近20年专注,给您可靠贴心服务!