联系人:武经理
手机:13933744225
电话: 0319-4786765
永盈彩票传真: 0319-4845306
邮箱: 776150030@qq.com
永盈彩票网址:passionvietnam.com
地址:河北省邢台市新河县城北工业区
在近20年的水利工程一线实战中,我亲历了56+大型项目的设计与落地,其中“QLYB型螺杆启闭机绿化灌溉闸门调控”始终是我技术方案中的核心环节。它不仅是控制水流的“开关”,更是实现节水、节能、智能管理的关键支点。

永盈彩票以某城市生态公园绿化灌溉系统为例:园区总面积约12万平方米,需分8个灌溉片区独立调控。我们采用QLYB型螺杆启闭机作为主控装置,配合电动执行机构实现远程启闭。整个系统运行稳定,水利用效率提升30%以上,真正实现了“按需供水”。

QLYB型螺杆启闭机的性能直接决定调控精度。根据工程需求,我们通常依据螺杆直径与行程进行匹配:
| 螺杆直径(mm) | 行程(mm) | 承载力(kN) | 适用闸门类型 | 单价区间(元/台) |
|---|---|---|---|---|
| 40 | 1000 | 50 | 小型平滑闸门 | 356–980 |
| 60 | 1500 | 100 | 中型弧形/平面闸门 | 1,800–4,200 |
| 80 | 2000 | 150 | 大型重载闸门 | 5,600–8,630 |
永盈彩票注:价格范围基于市场调研及批量采购参考,实际以定制化报价为准。
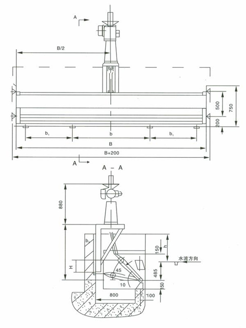
在设计初期,我们严格遵循 JB/T 9019.1-1999《螺杆式启闭机 型式和基本参数》永盈彩票,确保启闭机型号、安装尺寸、传动方式等符合行业通用标准。例如,在上述公园项目中,我们选用QLYB-80/2000型,其螺杆直径80mm,行程2000mm,完全满足大流量调流需求。
同时,所有金属结构件均采用 GB/T 700-2006《碳素结构钢》 标准材料,保障强度与耐久性。尤其在潮湿多雨地区,钢材必须具备良好抗腐蚀能力。
制造环节严格执行 SL/T 381-2021《水利水电工程启闭机制造安装及验收规范》,从焊接工艺到螺杆表面处理,每一步都有记录可查。我们曾发现某批次螺杆轴线偏差超标,立即返工,避免后期运行卡顿。
安装时,特别注意启闭机底座水平度与闸门轨道对齐,确保 QLYB型螺杆启闭机绿化灌溉闸门调控 动作顺畅无阻。现场实测数据显示,安装后启闭动作误差小于±2mm,远优于规范要求。
项目投运后,我们依据 SL/T 722—2020《水工钢闸门和启闭机安全运行规程》永盈彩票 定期开展巡检,重点检查螺杆磨损、限位开关灵敏度、电机过载保护等。某次例行检查中,及时发现限位失灵风险,提前更换部件,避免了闸门冲顶事故。
此外,所有外露金属构件均按 SL 105-2007《水工金属结构防腐蚀规范》 进行热浸镀锌+环氧涂层处理,有效抵御雨水侵蚀,延长设备寿命。
从设计到运维,每一个细节都经得起推敲。QLYB型螺杆启闭机绿化灌溉闸门调控 不仅是机械装置,更是一套集智能化、安全性与长效性于一体的系统解决方案。
永盈彩票如果你正在为灌溉系统控水不稳、能耗过高而困扰,不妨深入了解一下这一成熟技术。我们团队长期提供定制化支持,欢迎随时交流,让每一滴水都用得恰到好处。