联系人:武经理
手机:13933744225
电话: 0319-4786765
传真: 0319-4845306
永盈彩票邮箱: 776150030@qq.com
永盈彩票网址:passionvietnam.com
永盈彩票地址:河北省邢台市新河县城北工业区
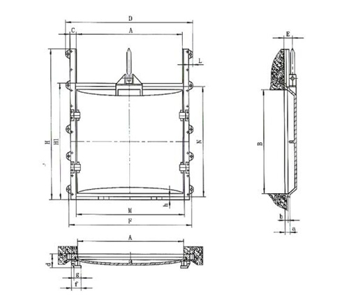
永盈彩票上周一个客户就差点翻车:他按图纸订了个0.6×0.6米的铸铁闸门,结果到货一比对,“两边各少了5mm”!门框卡死,拆都拆不下来。*后只能返厂重做,耽误了半个月工期,还赔了人工费。“这事儿真不是小问题,今天我就把常见尺寸的“避坑指南”给你讲透。”
永盈彩票🔍 常见尺寸铸铁闸门选型参考表(结合真实项目经验)
| 尺寸(宽×高) | 适配场景 | 关键参数(依据GB/T 9439-2023、SL 176-2007) | 供货周期 | 客户高频问题 |
|---|---|---|---|---|
| 300×300 mm | 农村灌溉支渠、小型排水口 | 材质:HT200灰铸铁;承压≤0.6MPa;启闭方式:手轮/螺杆式 | 10-15天 | 门框与墙体预留间隙不足,导致安装困难 |
| 0.6×0.6 m | 泵站进水口、排涝口 | HT250灰铸铁;承压0.8MPa;带止水橡皮;电动或手动启闭 | 15-20天 | 门体与井口尺寸偏差,门关不严漏水 |
| 0.8×0.8 m | 中小型水库泄洪口、雨水调蓄池 | HT250+防腐涂层;承压1.0MPa;双吊点手电两用启闭机 | 20-25天 | 启闭力过大,工人操作吃力 |
| 1×1 m | 水利枢纽分水口、城市管网节点 | HT250+表面喷锌处理;承压1.2MPa;电动控制箱配套 | 25-30天 | 未考虑基础预埋件位置,安装错位 |
| 2×2 m | 大型泵站主进水口、防洪闸 | HT300高强度铸铁+整体焊接结构;承压1.6MPa;液压启闭系统 | 40-60天 | 重量超限,吊装设备不够,无法进场 |
✅ “小贴士”:实际采购时,建议“预留5-10mm余量”(比如孔口0.6m,闸门选0.61m),避免因施工误差卡死。
🚫 客户容易踩的三大坑,我来帮你绕过去
❌ 坑1:尺寸测量不** → 门装不上
真实案例“:某县灌区项目,客户只量了“内口尺寸”,没测墙厚和预埋槽深度。结果闸门进了洞,”门框却卡在墙体里出不来。

👉 “解决办法”:
测量必须包括:“内口净尺寸 + 两侧墙体厚度 + 预埋槽深度”
用激光测距仪+钢卷尺双重校验,拍照发给厂家确认
我们标配一份《安装尺寸核对清单》,客户签字确认后才生产
❌ 坑2:参数匹配错,用着用着就漏水
永盈彩票真实案例“:有个0.8×0.8m的闸门,客户图便宜买了“普通HT200”,用了不到一年,”闸板变形,止水橡皮脱落,暴雨天漏得像筛子。
👉 “解决办法”:
水头超过3米或频繁启闭的,必须用HT250以上材质
止水橡胶必须是“三元乙丙(EPDM)”,耐老化、抗撕裂

永盈彩票我们所有闸门出厂前都会做“0.1MPa气密性试验”,附检测报告
❌ 坑3:供货周期没沟通,耽误工期
真实案例“:客户临时要2米×2米的大闸,说“下周就要用”,我们收到订单才发现需定制焊接结构,”*快也要40天。客户急得跳脚。
👉 “解决办法”:
提前30天报需求,明确是否需要加急
我们有“标准件库存”(如0.6×0.6、1×1以下),可“7天发货”
大尺寸提前备料,签订“工期承诺书”
✅ 给你的3条落地建议(真的能救命)
下单前先发一张“实拍尺寸图”给我们,我们帮你核对是否合理,避免“买错尺寸”

永盈彩票别只看价格,重点问清:材质等级、止水方案、是否含安装指导
大尺寸项目务必签合同备注“延期赔偿条款”,保障你的工程进度
别再为尺寸焦头烂额了。“我见过太多项目,不是技术不行,而是细节没盯住”。
如果你正在选型,直接把你的“具体尺寸+使用场景”发给我,我帮你快速判断——“不用猜,不踩坑,按时装上,稳稳运行”。